Podlaží
Izieb
Osoby
Úžitková plocha
Cena projektu
Cena na kľúč
Cena stavby svojpomocne
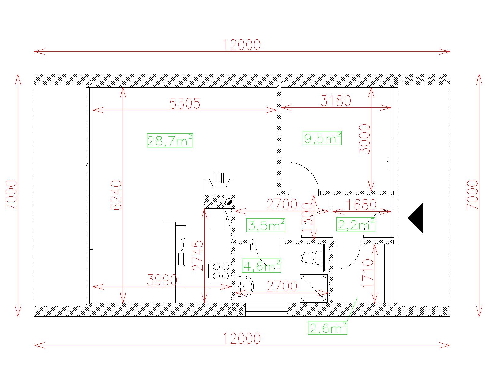
| Popis | Hodnota |
|---|---|
| Počet osôb | 3 |
| Orientácia vchodu | V. SV |
| Podlaží | 1 |
| Počet obytných izieb | 2 |
| Obostavaný priestor | 220 m2 |
| Celková úžitková plocha | 49.3 m2 |
| Celková obytná plocha | 30.6 m2 |
| Zastavaná plocha | 64.5 m3 |
| Výška hrebeňa strechy | 3.1 |
| Sklon strechy | 0 |
| Cena projektu | € 1 020 |
| Cena stavby na kľúč | € 59 000 |


