Podlaží
Izieb
Osoby
Úžitková plocha
Cena projektu
Cena na kľúč
Cena stavby svojpomocne
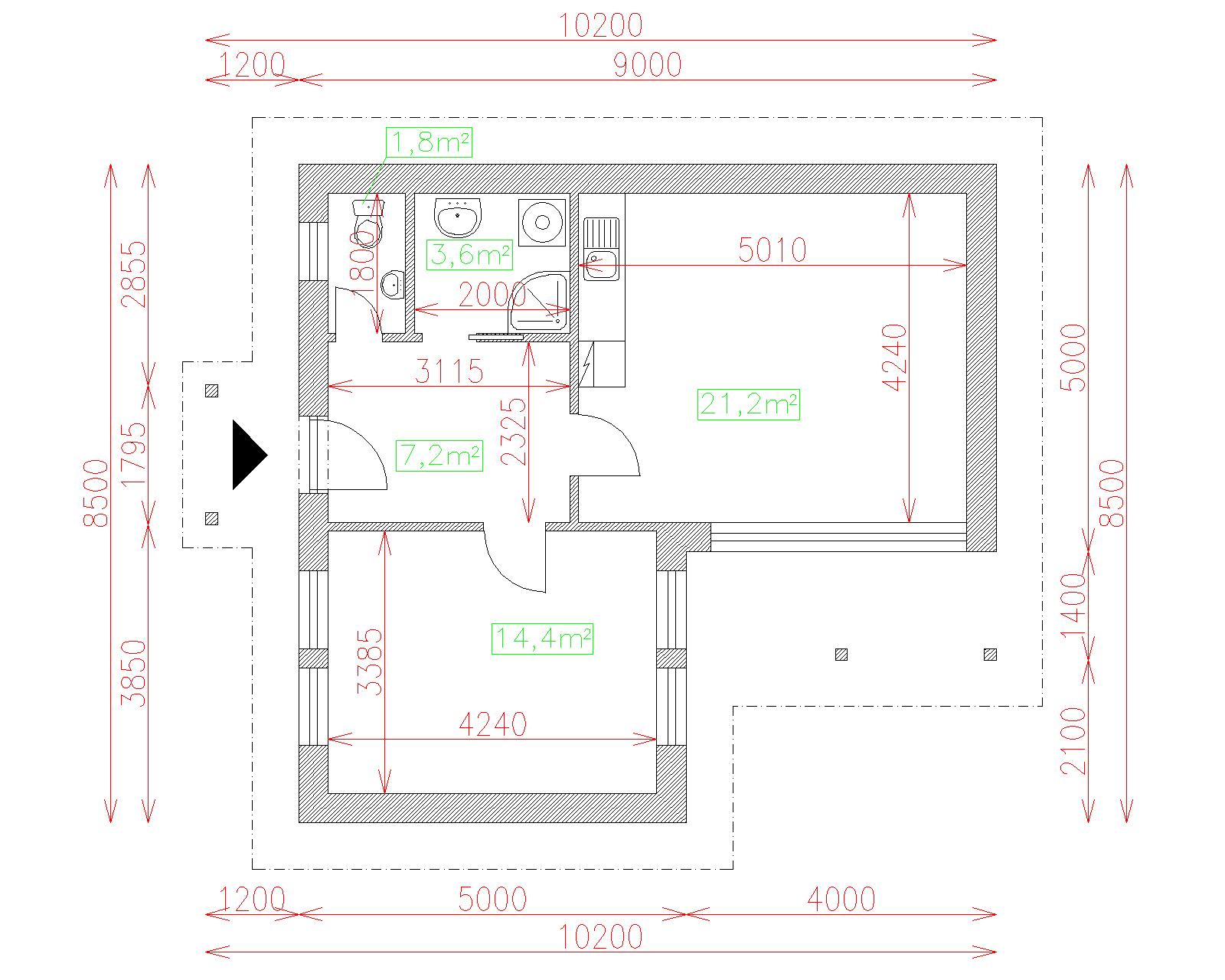
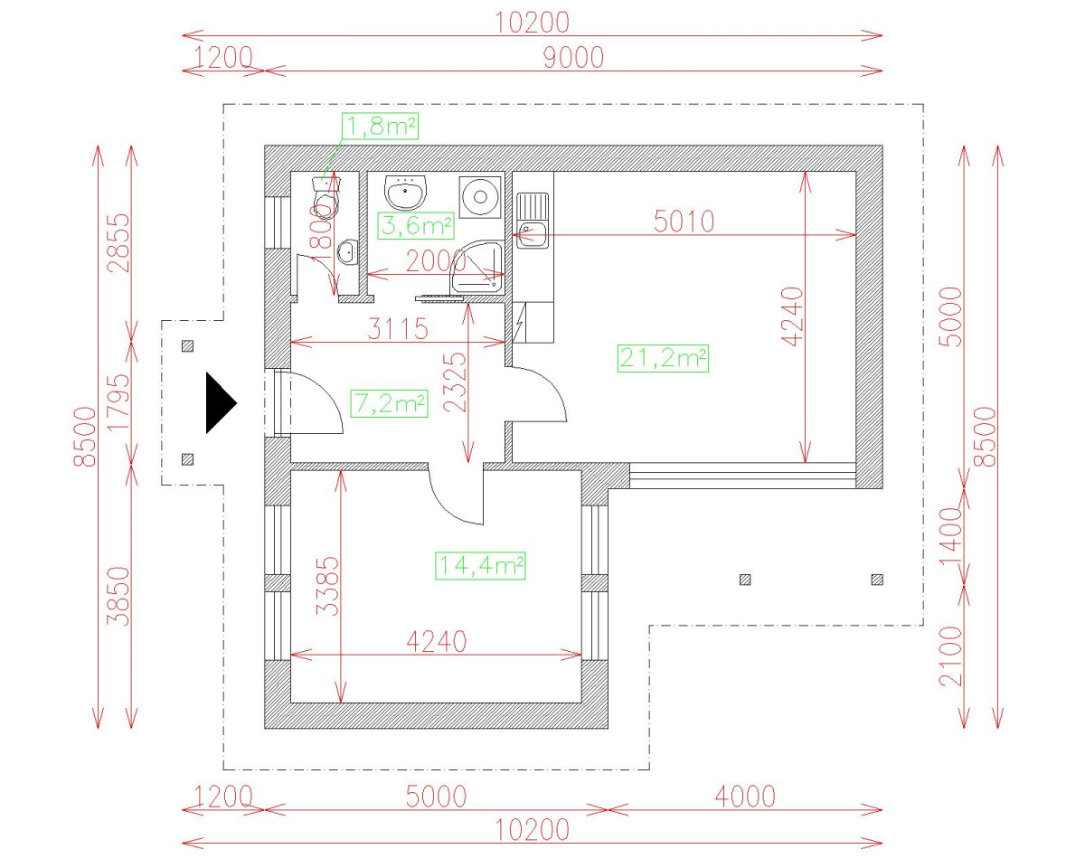
| Popis | Hodnota |
|---|---|
| Počet osôb | 2 |
| Orientácia vchodu | V. Z |
| Podlaží | 1 |
| Počet obytných izieb | 2 |
| Obostavaný priestor | 240 m2 |
| Celková úžitková plocha | 48.1 m2 |
| Celková obytná plocha | 35.5 m2 |
| Zastavaná plocha | 62.6 m3 |
| Výška hrebeňa strechy | 4.5 |
| Sklon strechy | 22 |
| Cena projektu | € 2 200 |
| Cena stavby na kľúč | € 57 000 |


