Podlaží
Izieb
Osoby
Úžitková plocha
Cena projektu
Cena na kľúč
Cena stavby svojpomocne
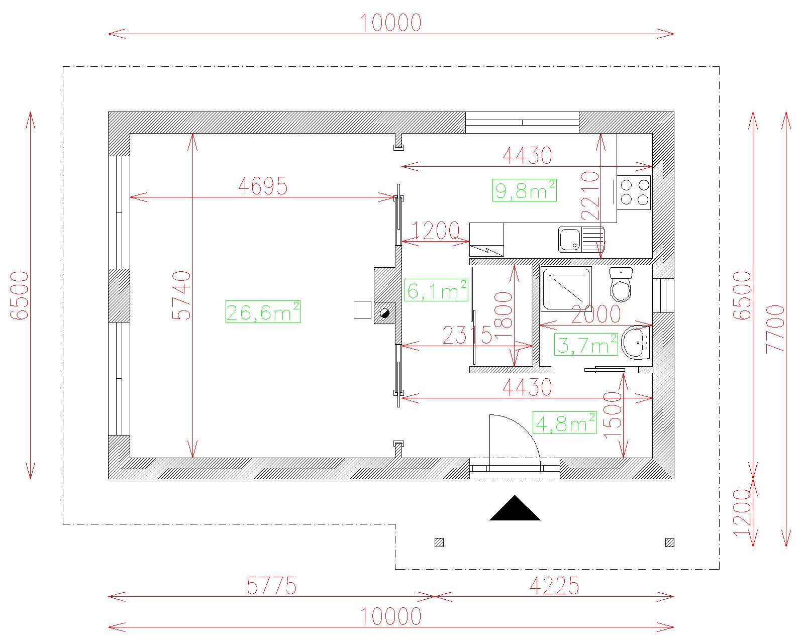
| Popis | Hodnota |
|---|---|
| Počet osôb | 2 |
| Orientácia vchodu | V. SV |
| Podlaží | 1 |
| Počet obytných izieb | 1 |
| Obostavaný priestor | 270 m2 |
| Celková úžitková plocha | 51 m2 |
| Celková obytná plocha | 26.6 m2 |
| Zastavaná plocha | 65 m3 |
| Výška hrebeňa strechy | 4.6 |
| Sklon strechy | 25 |
| Cena projektu | € 1 060 |
| Cena stavby na kľúč | € 60 000 |


