Podlaží
Izieb
Osoby
Úžitková plocha
Cena projektu
Cena na kľúč
Cena stavby svojpomocne
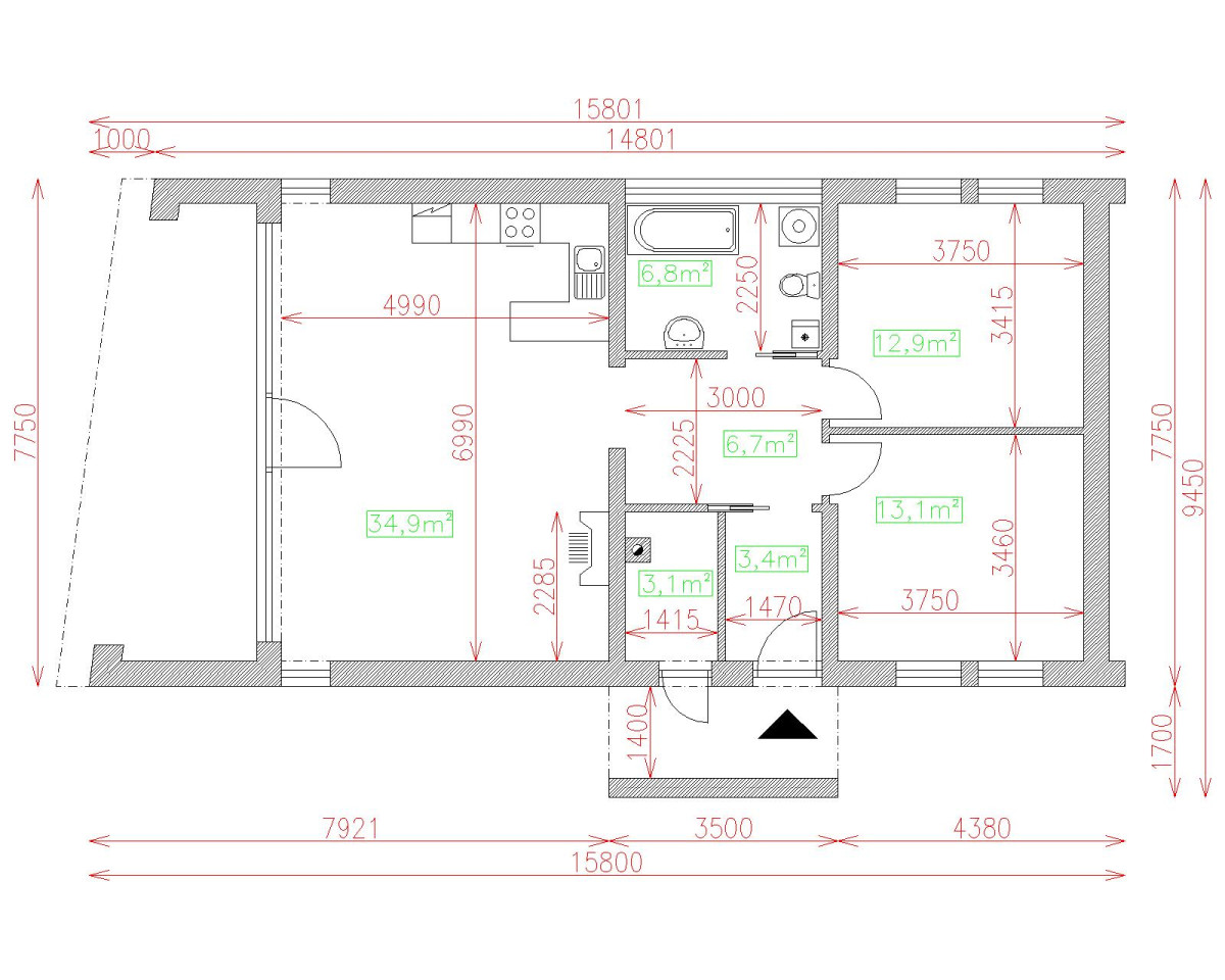
| Popis | Hodnota |
|---|---|
| Počet osôb | 4 |
| Orientácia vchodu | V |
| Podlaží | 1 |
| Počet obytných izieb | 3 |
| Obostavaný priestor | 410 m2 |
| Celková úžitková plocha | 80.4 m2 |
| Celková obytná plocha | 60.7 m2 |
| Zastavaná plocha | 102.7 m3 |
| Výška hrebeňa strechy | 5.5 |
| Sklon strechy | 7 |
| Cena projektu | € 2 630 |
| Cena stavby na kľúč | € 109 500 |


