Podlaží
Izieb
Osoby
Úžitková plocha
Cena projektu
Cena na kľúč
Cena stavby svojpomocne
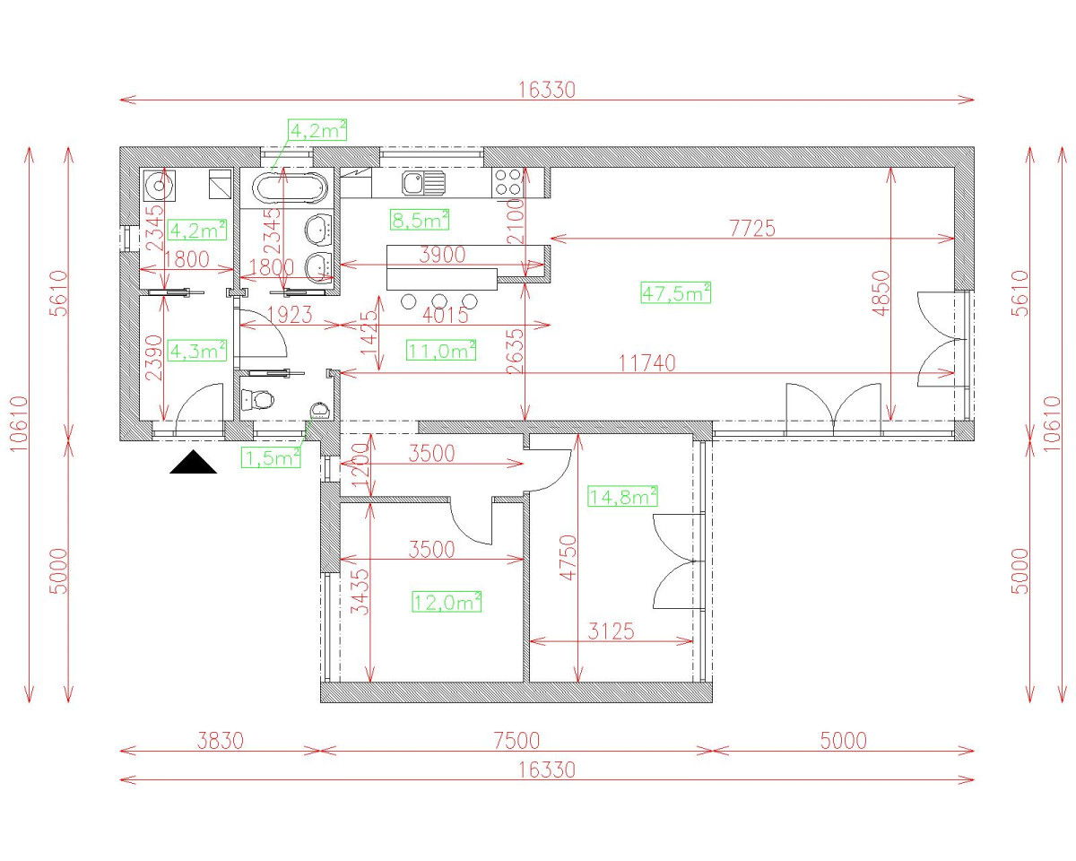
| Popis | Hodnota |
|---|---|
| Počet osôb | 3 |
| Orientácia vchodu | S.SV |
| Podlaží | 1 |
| Počet obytných izieb | 3 |
| Obostavaný priestor | 470 m2 |
| Celková úžitková plocha | 104.5 m2 |
| Celková obytná plocha | 77.1 m2 |
| Zastavaná plocha | 130.8 m3 |
| Výška hrebeňa strechy | 3.5 |
| Sklon strechy | 0 |
| Cena projektu | € 1 270 |
| Cena stavby na kľúč | € 138 500 |


