Podlaží
Izieb
Osoby
Úžitková plocha
Cena projektu
Cena na kľúč
Cena stavby svojpomocne
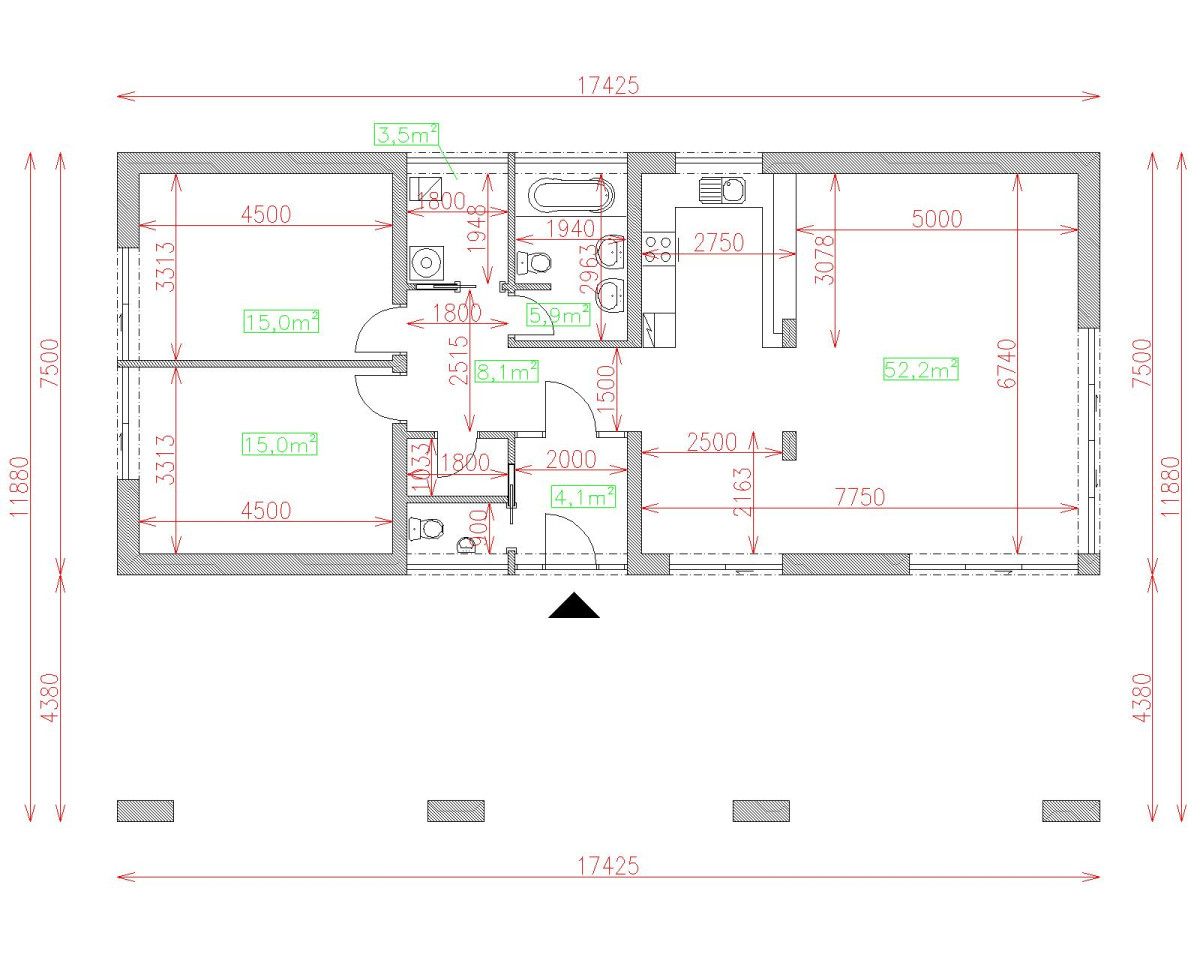
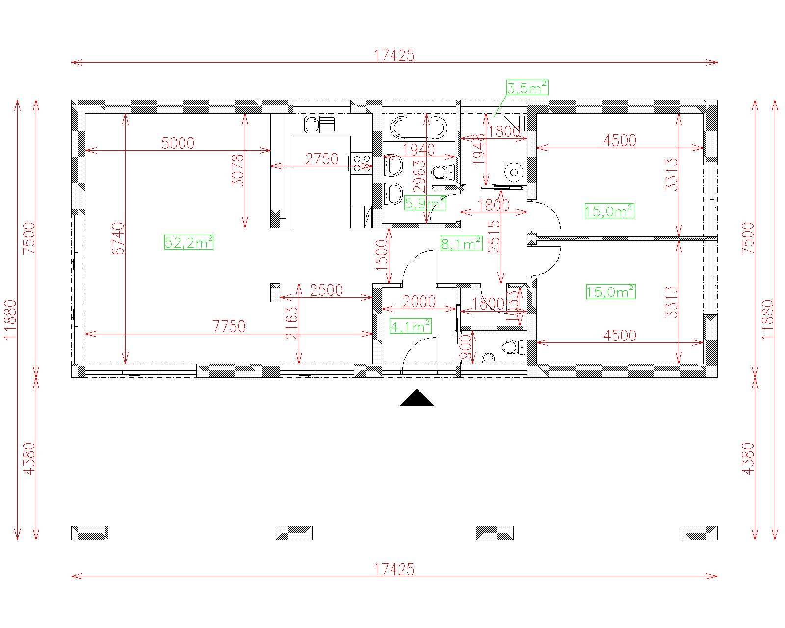
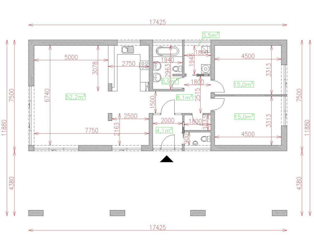
| Popis | Hodnota |
|---|---|
| Počet osôb | 4 |
| Orientácia vchodu | Z. JZ |
| Podlaží | 1 |
| Počet obytných izieb | 3 |
| Obostavaný priestor | 470 m2 |
| Celková úžitková plocha | 107.3 m2 |
| Celková obytná plocha | 73.7 m2 |
| Zastavaná plocha | 130.7 m3 |
| Výška hrebeňa strechy | 3.5 |
| Sklon strechy | 0 |
| Cena projektu | € 1 310 |
| Cena stavby na kľúč | € 138 500 |


