Podlaží
Izieb
Osoby
Úžitková plocha
Cena projektu
Cena na kľúč
Cena stavby svojpomocne
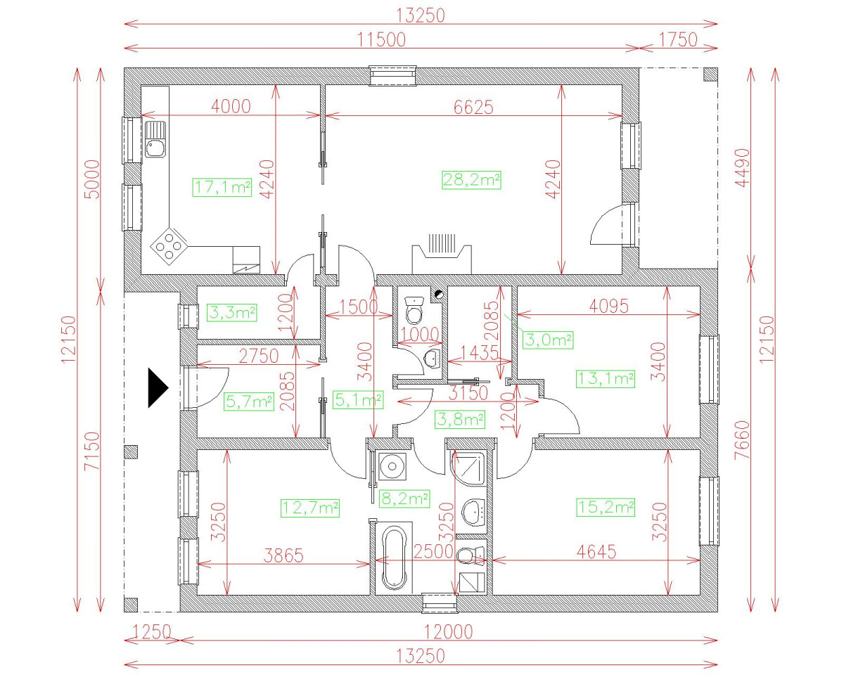
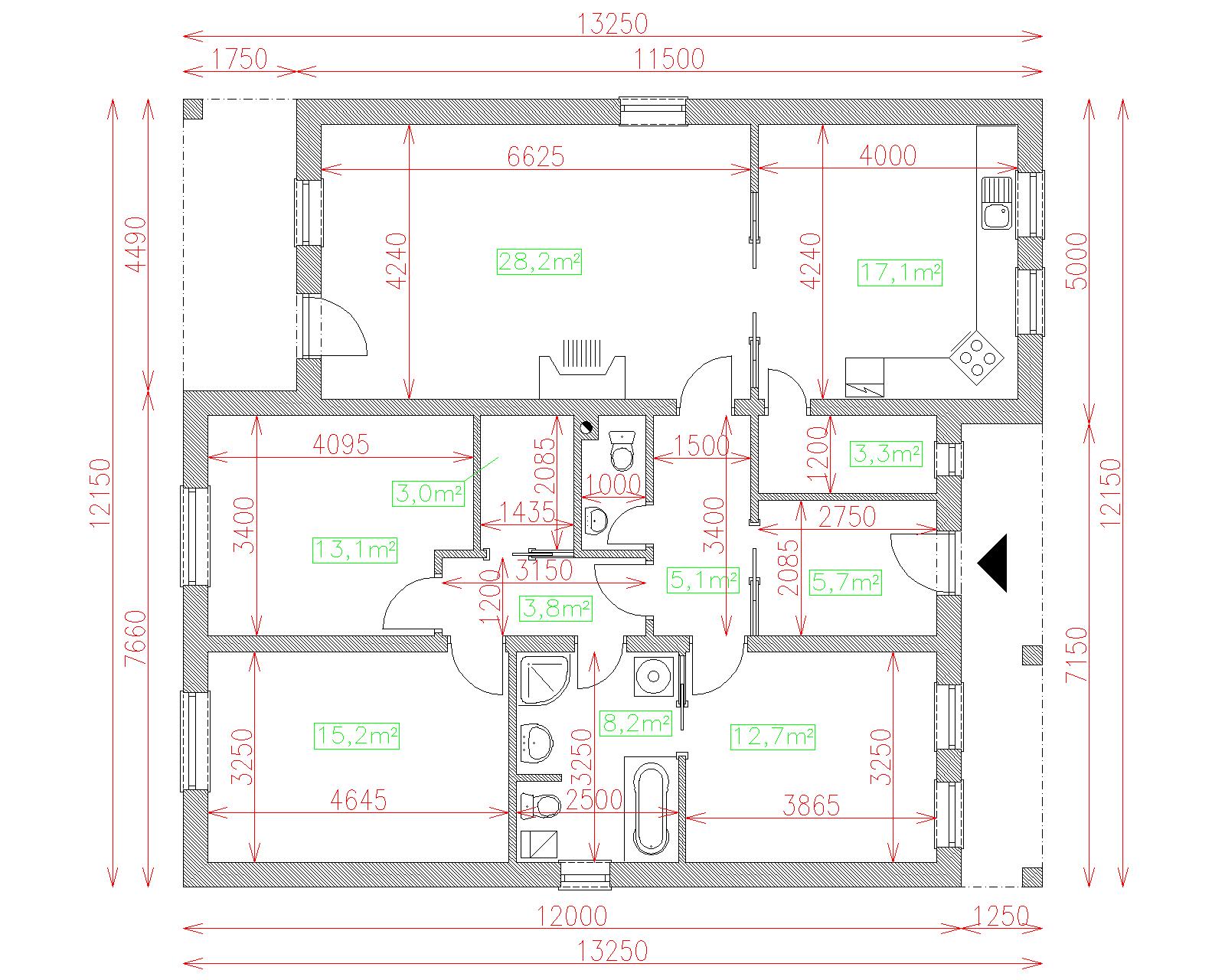
| Popis | Hodnota |
|---|---|
| Počet osôb | 5 |
| Orientácia vchodu | V. SV |
| Podlaží | 1 |
| Počet obytných izieb | 4 |
| Obostavaný priestor | 510 m2 |
| Celková úžitková plocha | 117.4 m2 |
| Celková obytná plocha | 77.7 m2 |
| Zastavaná plocha | 144.2 m3 |
| Výška hrebeňa strechy | 3.6 |
| Sklon strechy | 0 |
| Cena projektu | € 2 280 |
| Cena stavby na kľúč | € 152 500 |


