Podlaží
Izieb
Osoby
Úžitková plocha
Cena projektu
Cena na kľúč
Cena stavby svojpomocne
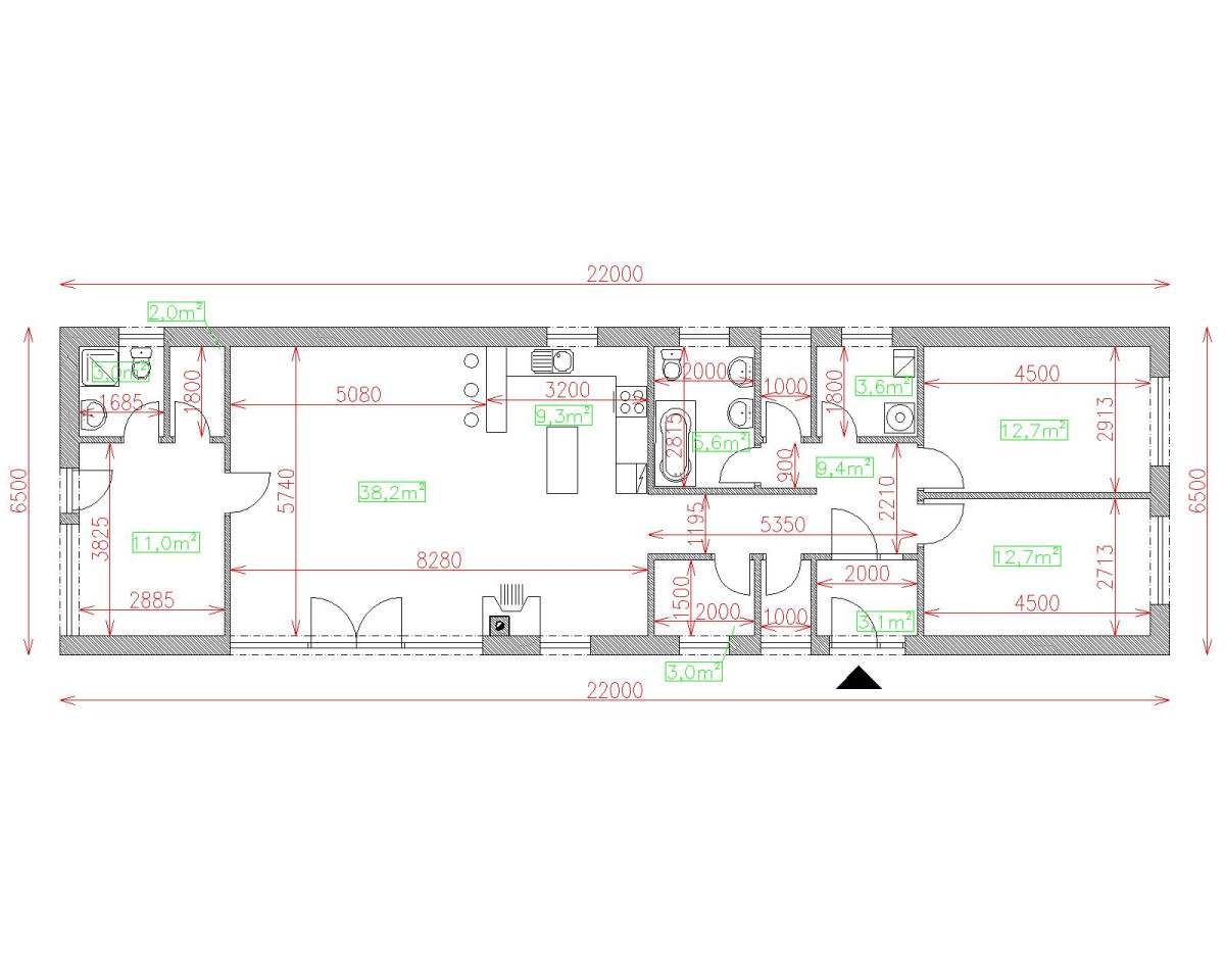
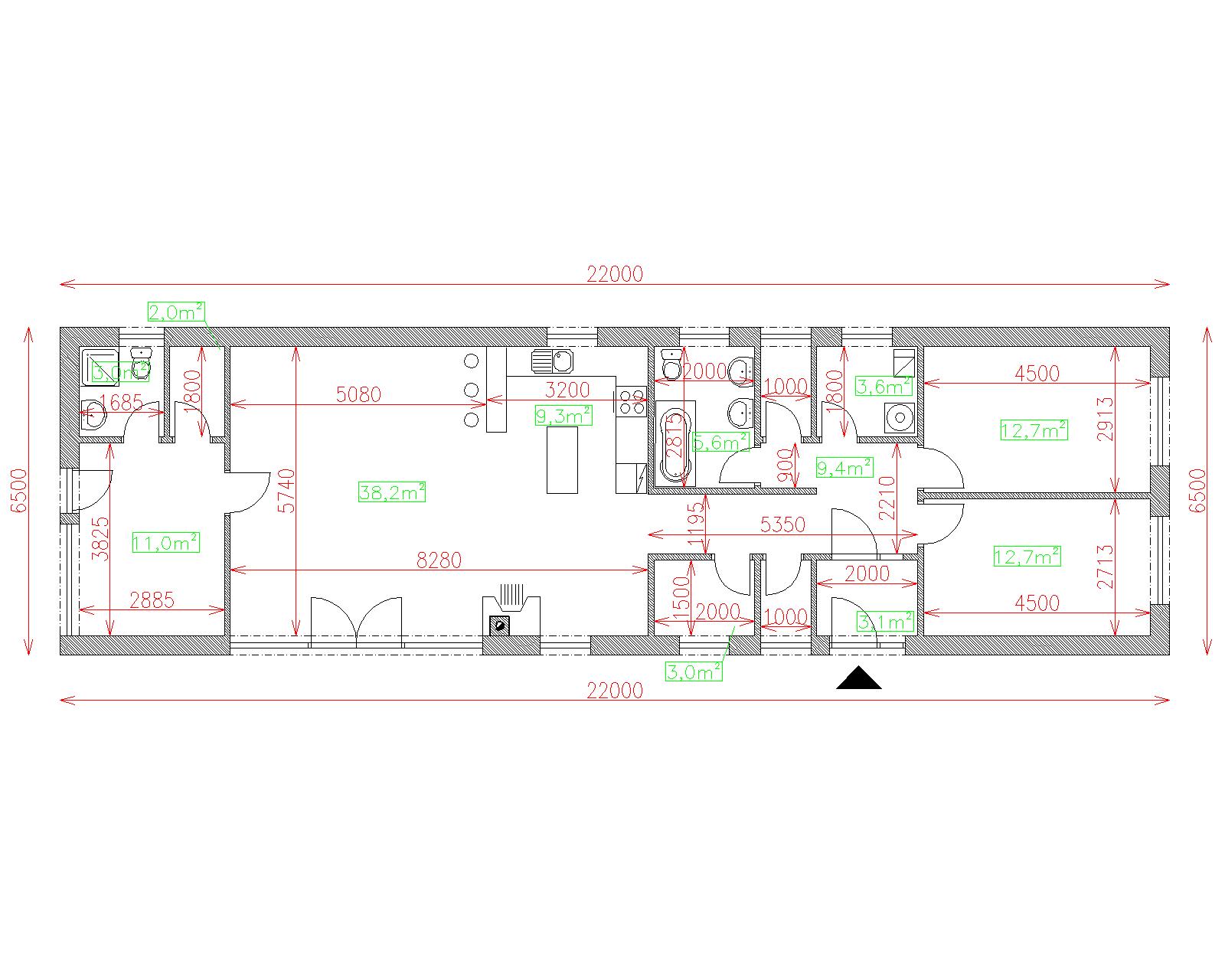
| Popis | Hodnota |
|---|---|
| Počet osôb | 4 |
| Orientácia vchodu | JZ.Z |
| Podlaží | 1 |
| Počet obytných izieb | 4 |
| Obostavaný priestor | 520 m2 |
| Celková úžitková plocha | 116.8 m2 |
| Celková obytná plocha | 75.3 m2 |
| Zastavaná plocha | 143 m3 |
| Výška hrebeňa strechy | 3.5 |
| Sklon strechy | 0 |
| Cena projektu | € 1 300 |
| Cena stavby na kľúč | € 151 000 |


