Podlaží
Izieb
Osoby
Úžitková plocha
Cena projektu
Cena na kľúč
Cena stavby svojpomocne
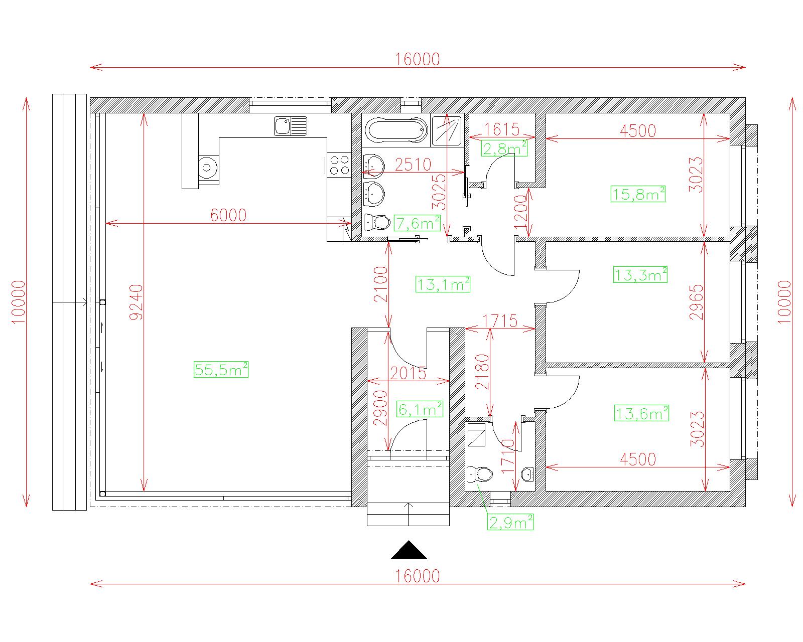
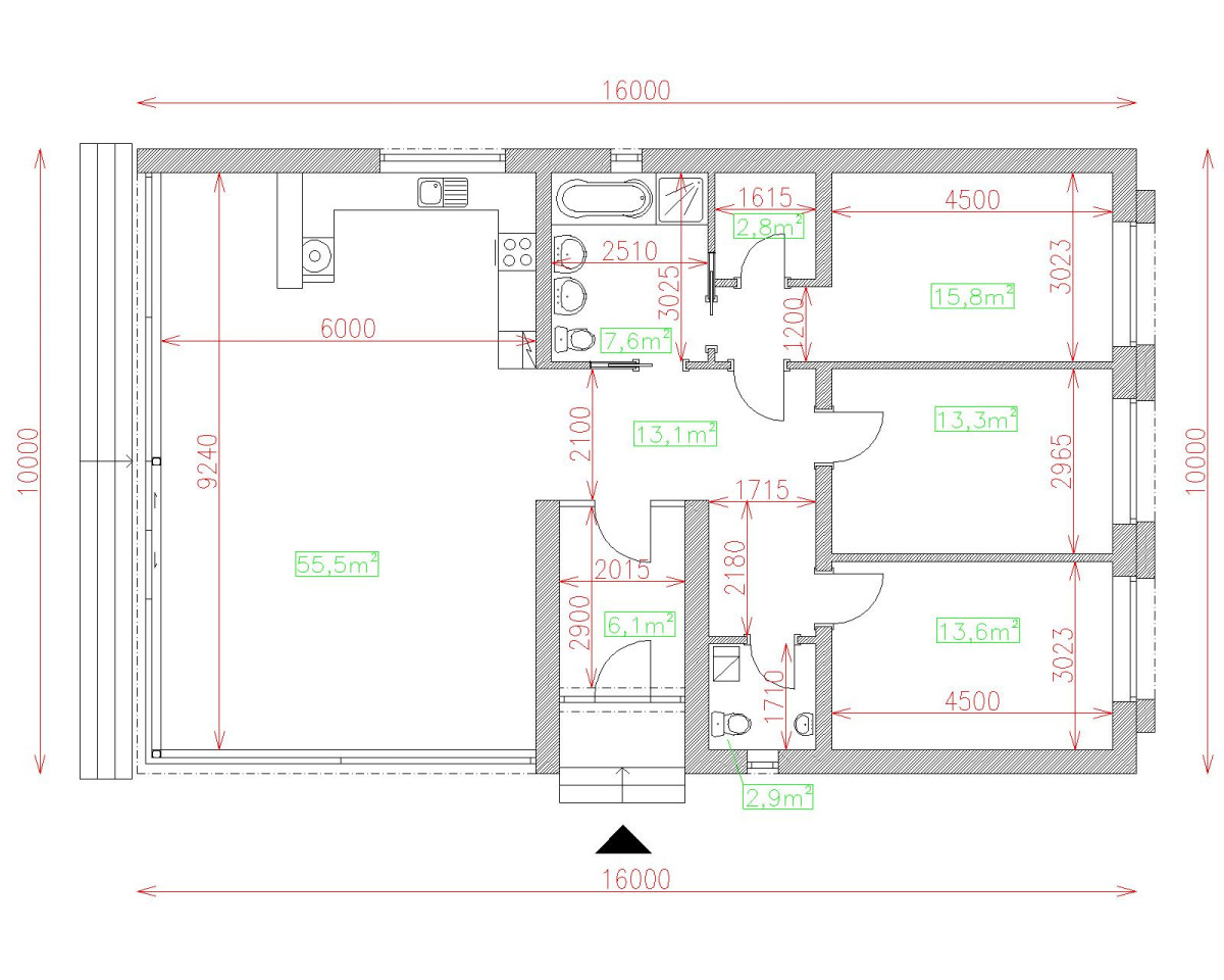
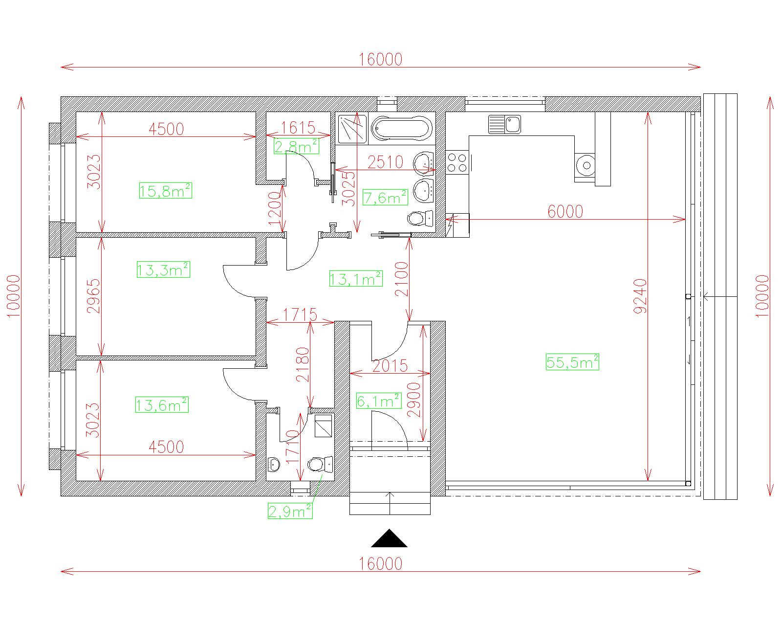
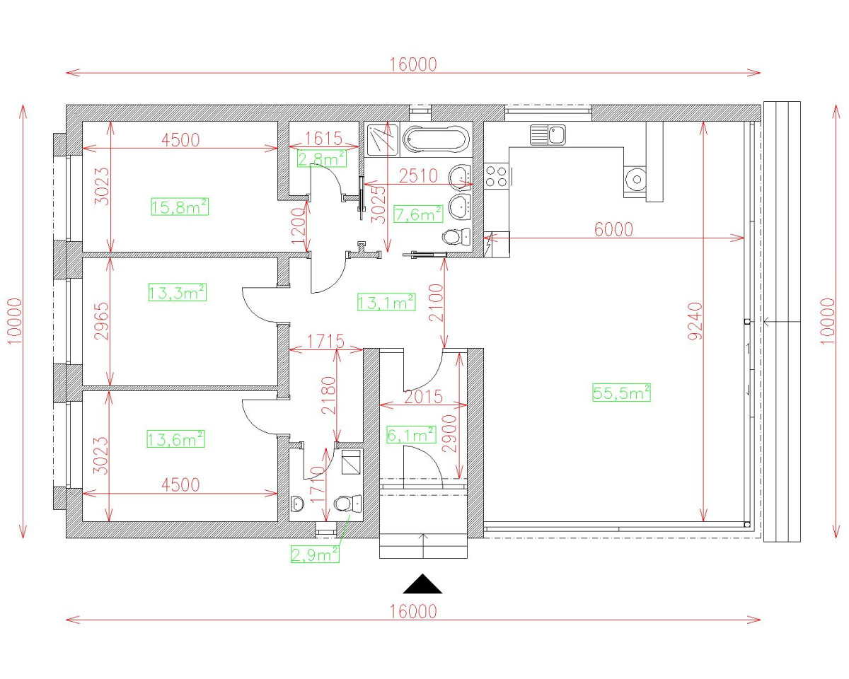
| Popis | Hodnota |
|---|---|
| Počet osôb | 4 |
| Orientácia vchodu | J. JV |
| Podlaží | 1 |
| Počet obytných izieb | 4 |
| Obostavaný priestor | 570 m2 |
| Celková úžitková plocha | 130.7 m2 |
| Celková obytná plocha | 98.2 m2 |
| Zastavaná plocha | 160.2 m3 |
| Výška hrebeňa strechy | 3.5 |
| Sklon strechy | 0 |
| Cena projektu | € 1 450 |
| Cena stavby na kľúč | € 169 000 |


