Podlaží
Izieb
Osoby
Úžitková plocha
Cena projektu
Cena na kľúč
Cena stavby svojpomocne
| Popis | Hodnota |
|---|---|
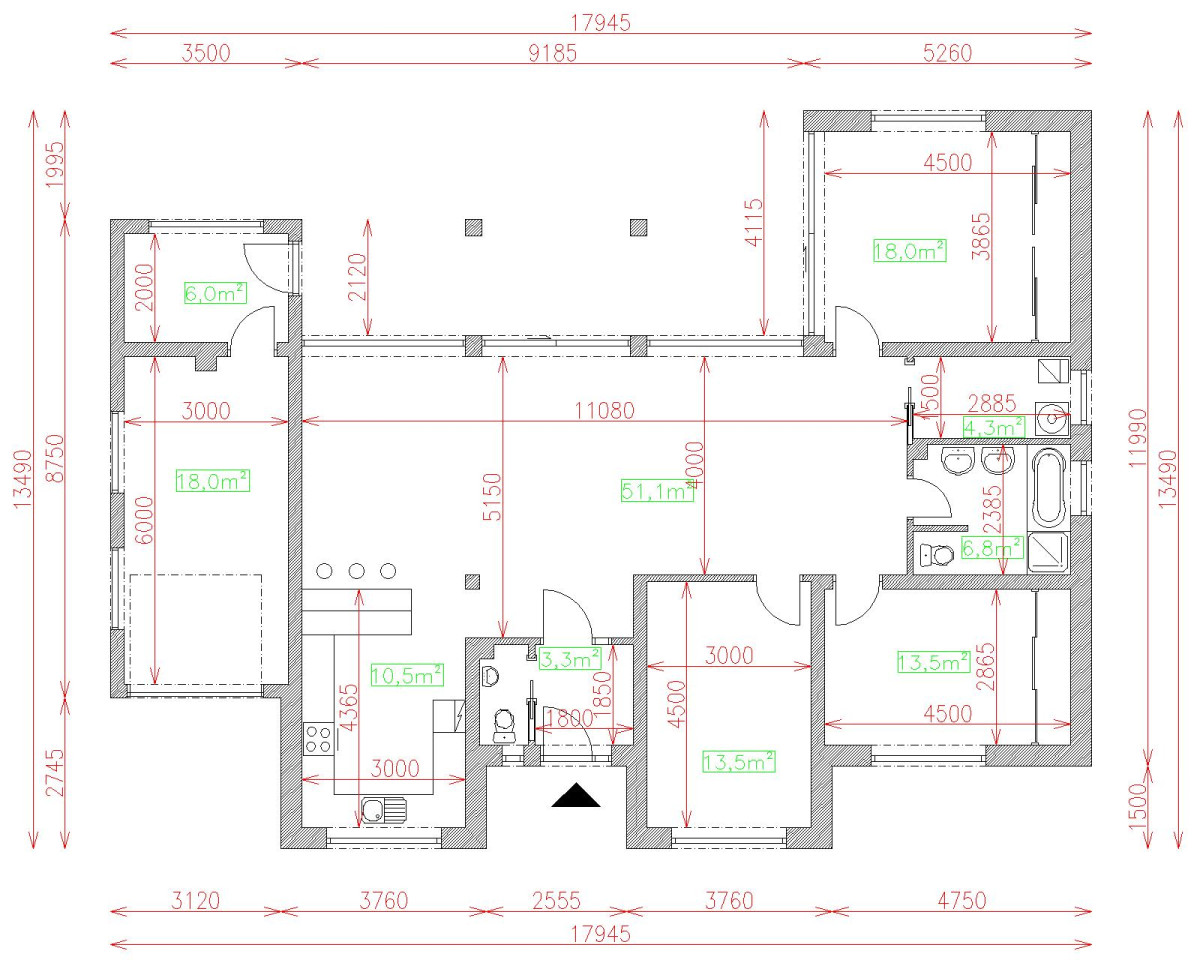
| Počet osôb | 4 |
| Orientácia vchodu | V |
| Podlaží | 1 |
| Počet obytných izieb | 4 |
| Obostavaný priestor | 680 m2 |
| Celková úžitková plocha | 146.7 m2 |
| Celková obytná plocha | 96.1 m2 |
| Zastavaná plocha | 177.8 m3 |
| Výška hrebeňa strechy | 4.5 |
| Sklon strechy | 0 |
| Cena projektu | € 1 360 |
| Cena stavby na kľúč | € 187 500 |


