Podlaží
Izieb
Osoby
Úžitková plocha
Cena projektu
Cena na kľúč
Cena stavby svojpomocne
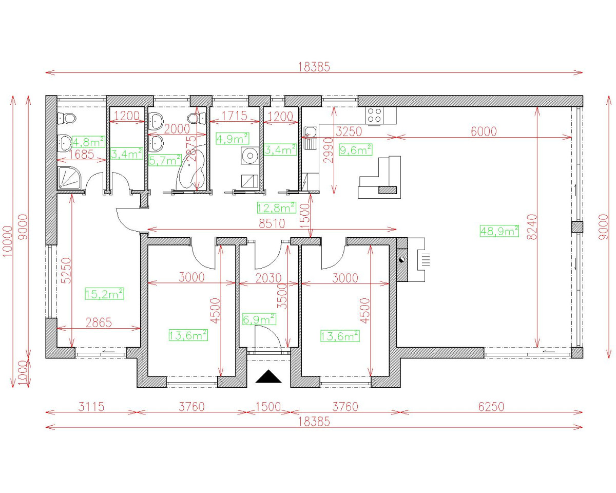
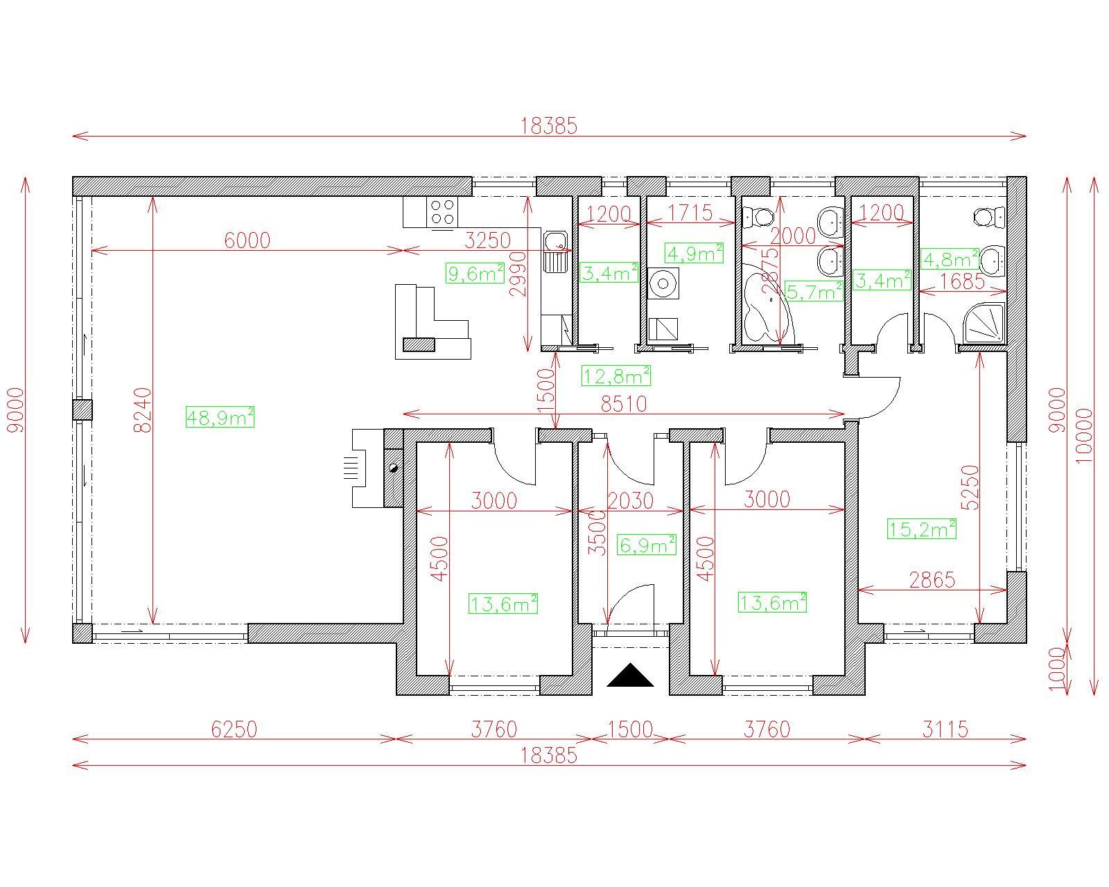
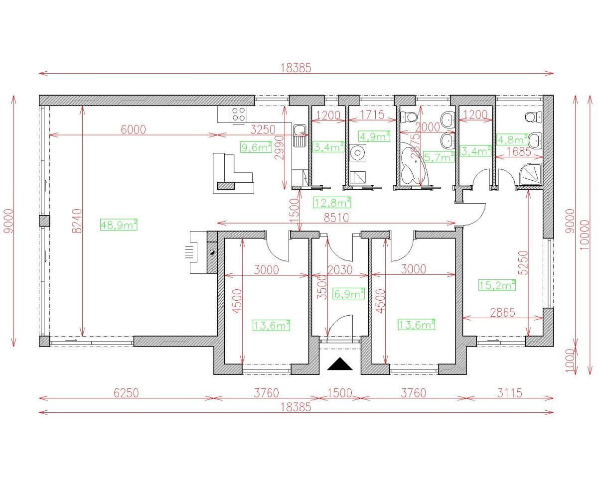
| Popis | Hodnota |
|---|---|
| Počet osôb | 4 |
| Orientácia vchodu | J |
| Podlaží | 1 |
| Počet obytných izieb | 4 |
| Obostavaný priestor | 640 m2 |
| Celková úžitková plocha | 142.6 m2 |
| Celková obytná plocha | 91.3 m2 |
| Zastavaná plocha | 173 m3 |
| Výška hrebeňa strechy | 4.4 |
| Sklon strechy | 0 |
| Cena projektu | € 1 420 |
| Cena stavby na kľúč | € 182 500 |


