Podlaží
Izieb
Osoby
Úžitková plocha
Cena projektu
Cena na kľúč
Cena stavby svojpomocne
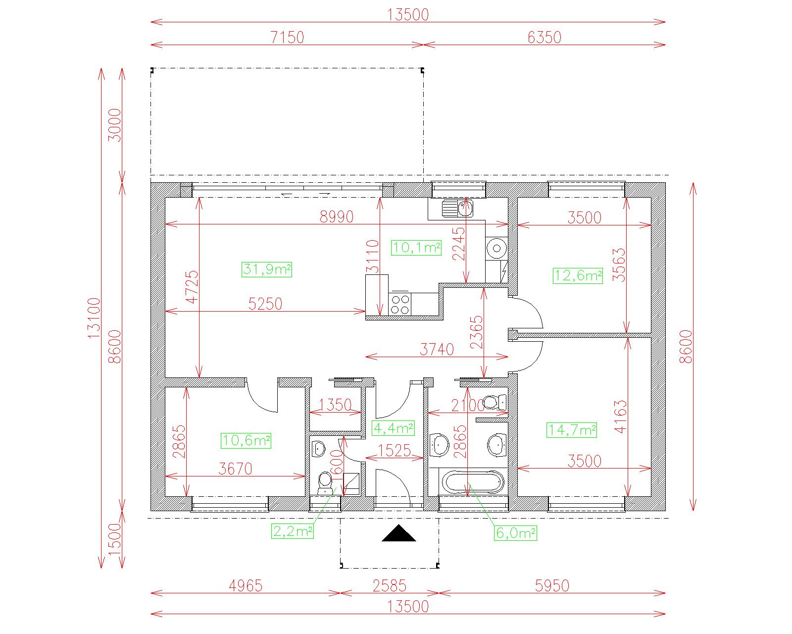
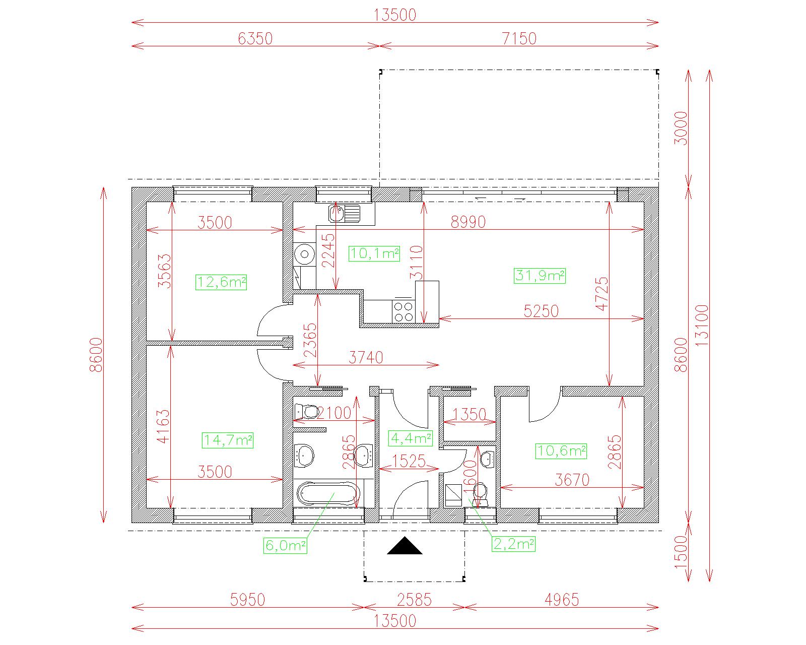
| Popis | Hodnota |
|---|---|
| Počet osôb | 4 |
| Orientácia vchodu | V. JV |
| Podlaží | 1 |
| Počet obytných izieb | 4 |
| Obostavaný priestor | 500 m2 |
| Celková úžitková plocha | 94.2 m2 |
| Celková obytná plocha | 68.4 m2 |
| Zastavaná plocha | 116.1 m3 |
| Výška hrebeňa strechy | 4.3 |
| Sklon strechy | 25 |
| Cena projektu | € 1 320 |
| Cena stavby na kľúč | € 123 000 |


