Podlaží
Izieb
Osoby
Úžitková plocha
Cena projektu
Cena na kľúč
Cena stavby svojpomocne
| Popis | Hodnota |
|---|---|
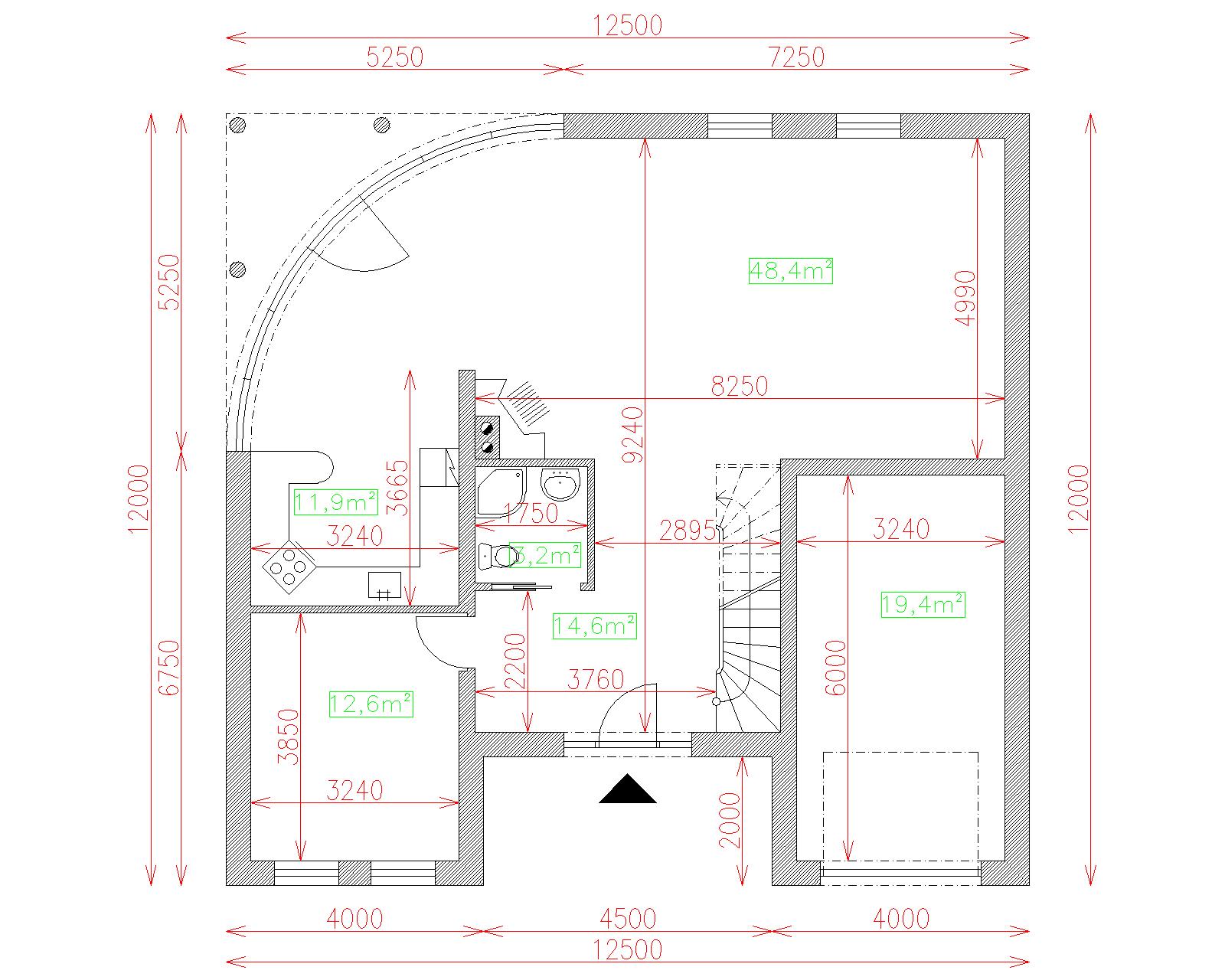
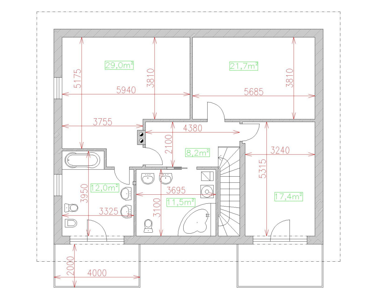
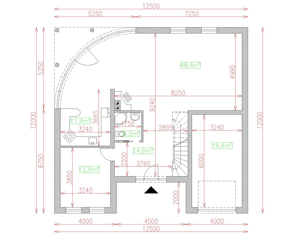
| Počet osôb | 6 |
| Orientácia vchodu | S.SZ |
| Podlaží | 2 |
| Počet obytných izieb | 6 |
| Obostavaný priestor | 810 m2 |
| Celková úžitková plocha | 228.6 m2 |
| Celková obytná plocha | 138.5 m2 |
| Zastavaná plocha | 135.1 m3 |
| Výška hrebeňa strechy | 7.3 |
| Sklon strechy | 35 |
| Cena projektu | € 2 890 |
| Cena stavby na kľúč | € 241 000 |


