Podlaží
Izieb
Osoby
Úžitková plocha
Cena projektu
Cena na kľúč
Cena stavby svojpomocne
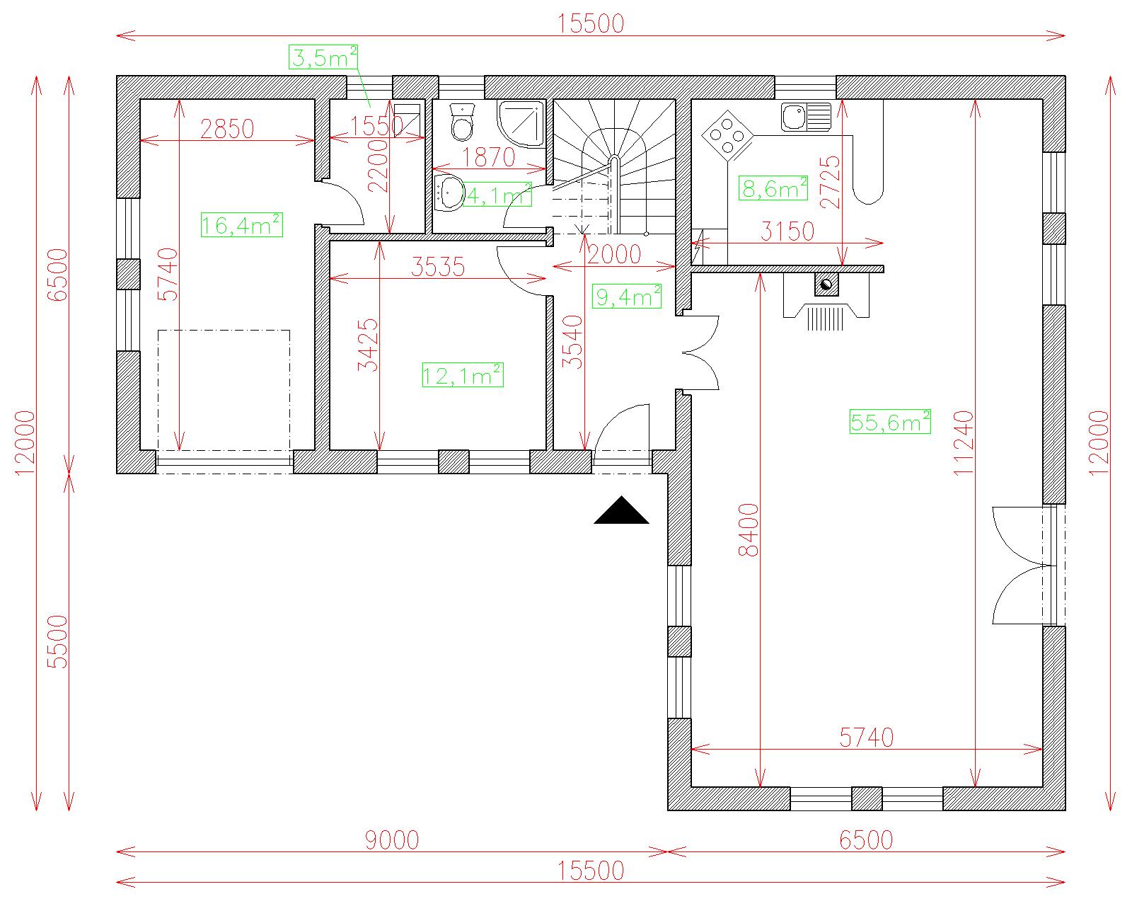
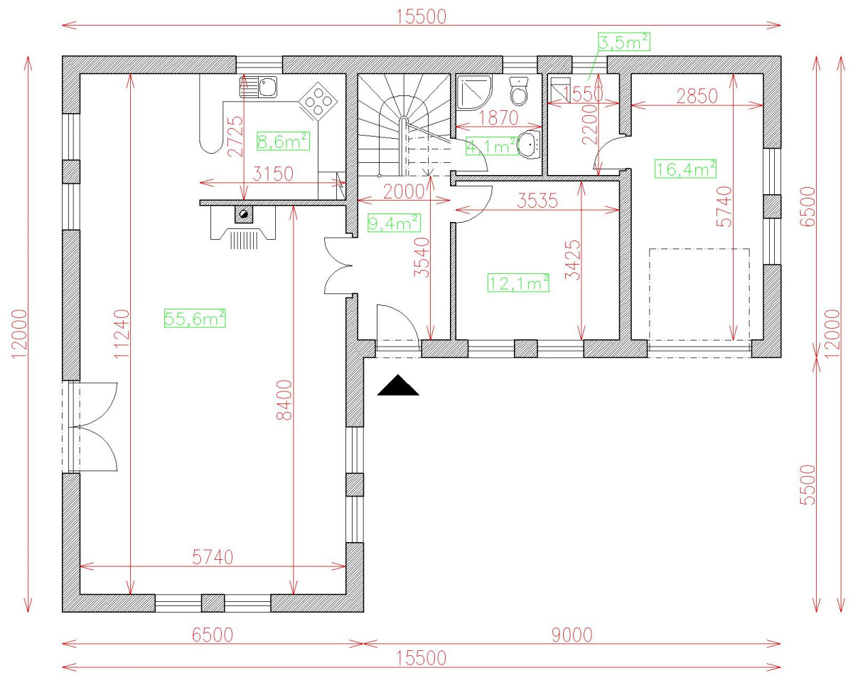
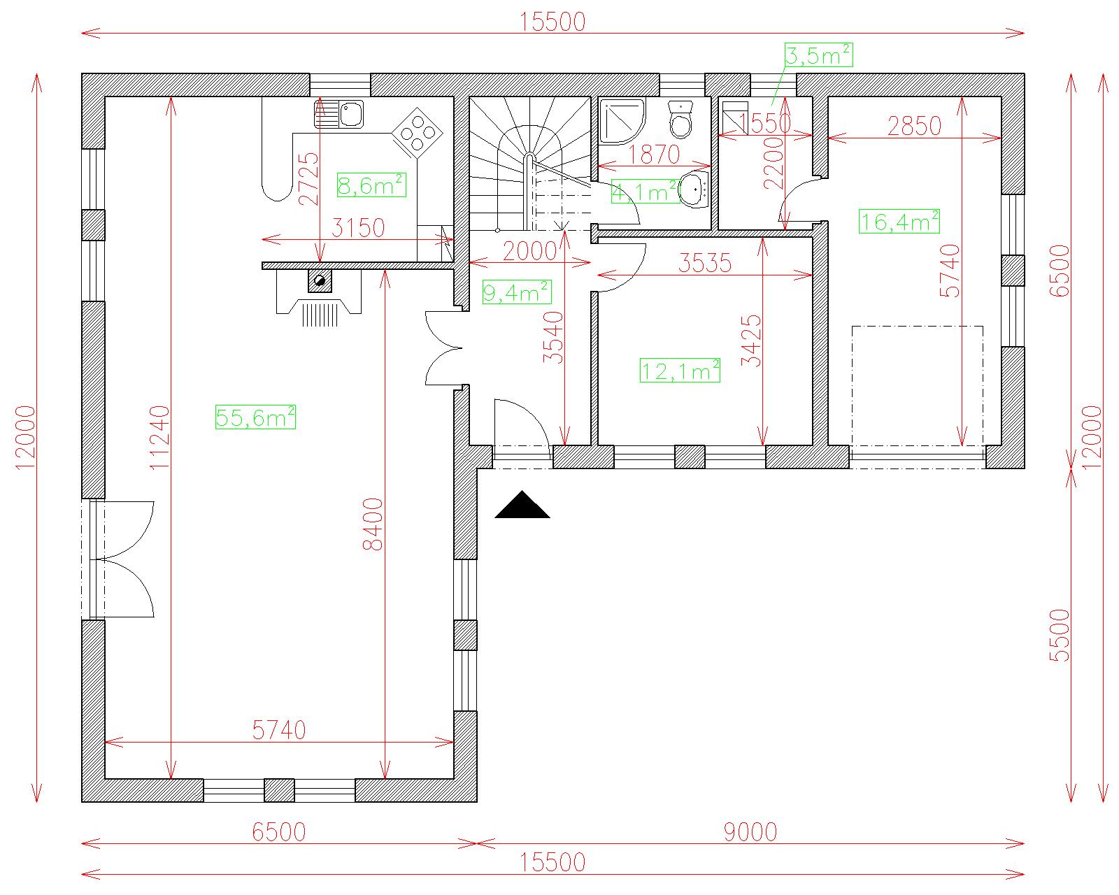
| Popis | Hodnota |
|---|---|
| Počet osôb | 5 |
| Orientácia vchodu | J.JV |
| Podlaží | 2 |
| Počet obytných izieb | 5 |
| Obostavaný priestor | 860 m2 |
| Celková úžitková plocha | 229.4 m2 |
| Celková obytná plocha | 135.2 m2 |
| Zastavaná plocha | 136.5 m3 |
| Výška hrebeňa strechy | 7 |
| Sklon strechy | 38 |
| Cena projektu | € 1 380 |
| Cena stavby na kľúč | € 243 000 |


