Podlaží
Izieb
Osoby
Úžitková plocha
Cena projektu
Cena na kľúč
Cena stavby svojpomocne
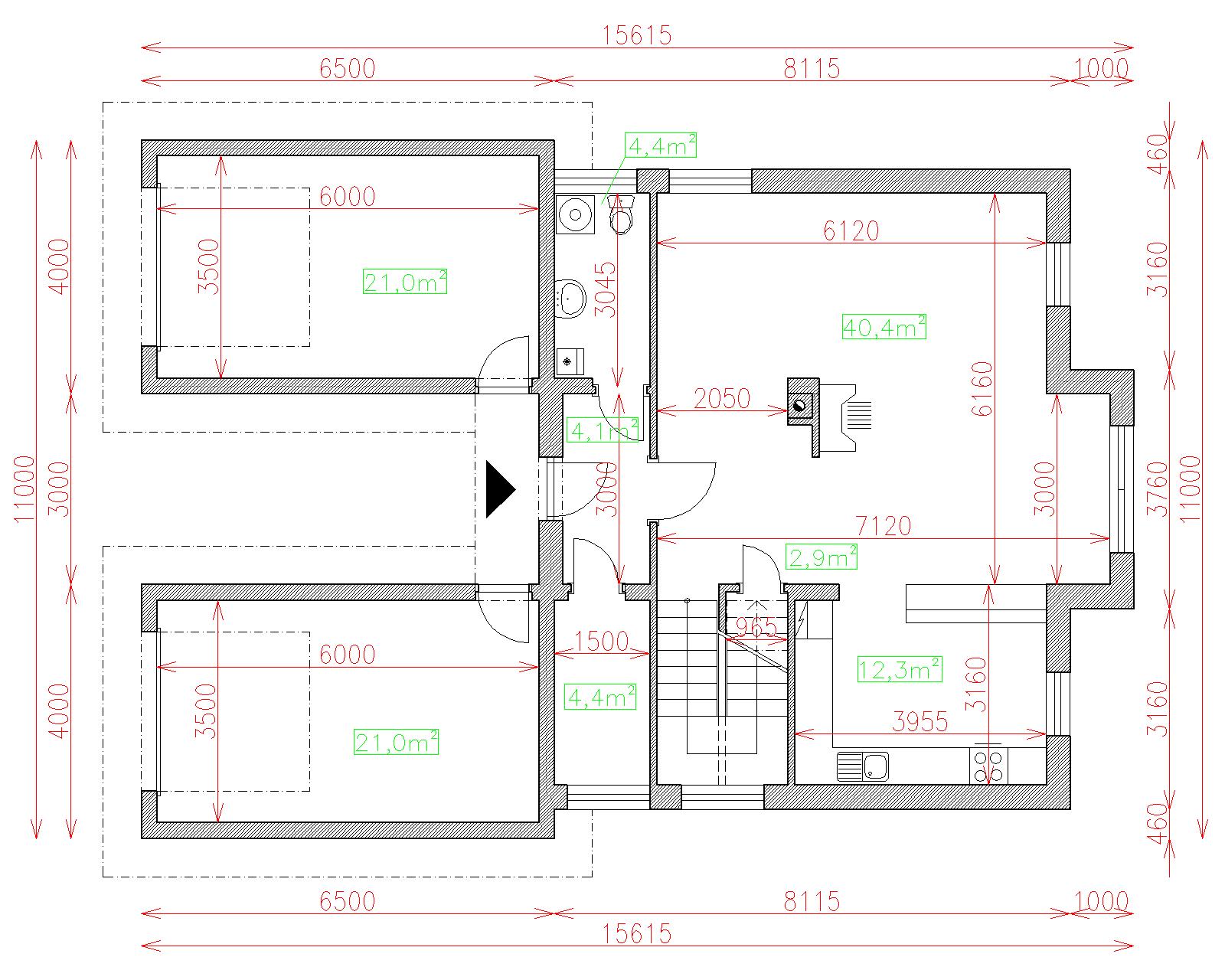
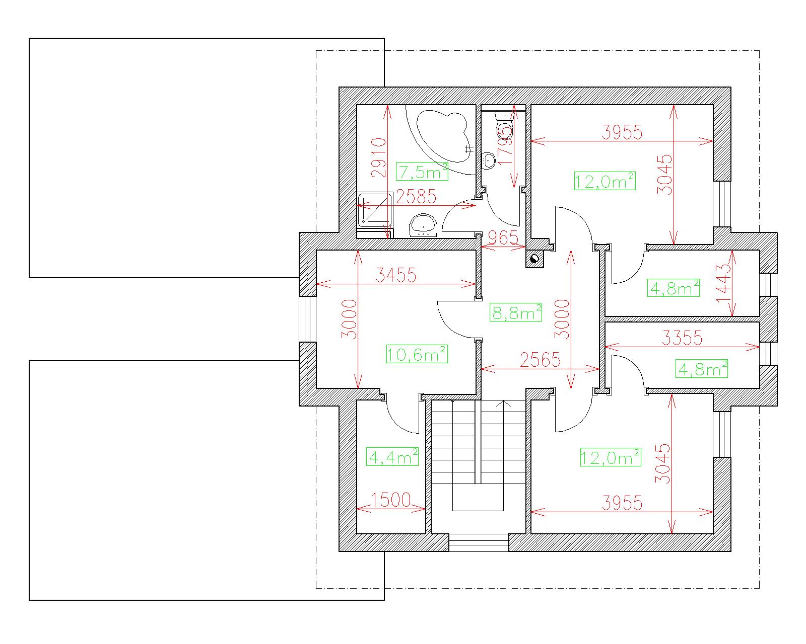
| Popis | Hodnota |
|---|---|
| Počet osôb | 4 |
| Orientácia vchodu | Z.JZ |
| Podlaží | 2 |
| Počet obytných izieb | 4 |
| Obostavaný priestor | 620 m2 |
| Celková úžitková plocha | 184.1 m2 |
| Celková obytná plocha | 74.9 m2 |
| Zastavaná plocha | 138.3 m3 |
| Výška hrebeňa strechy | 7.3 |
| Sklon strechy | 22 |
| Cena projektu | € 1 370 |
| Cena stavby na kľúč | € 246 000 |


