Podlaží
Izieb
Osoby
Úžitková plocha
Cena projektu
Cena na kľúč
Cena stavby svojpomocne
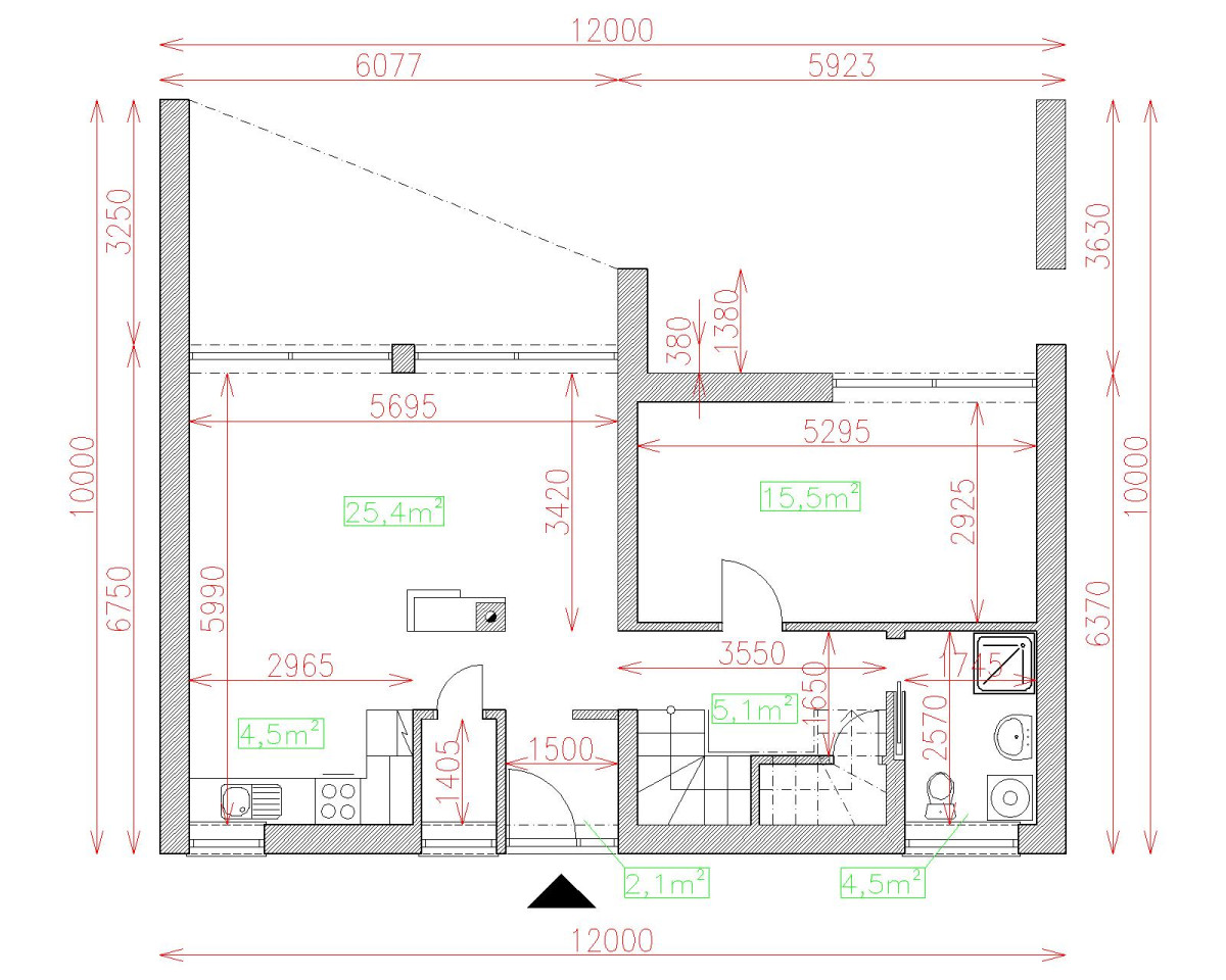
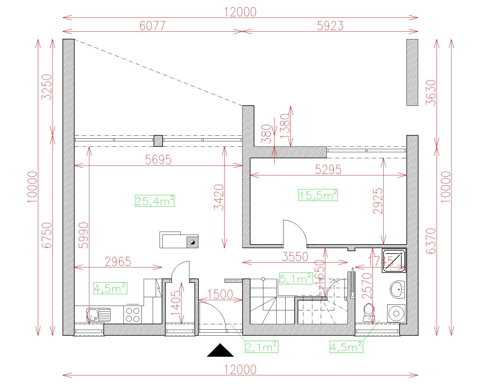
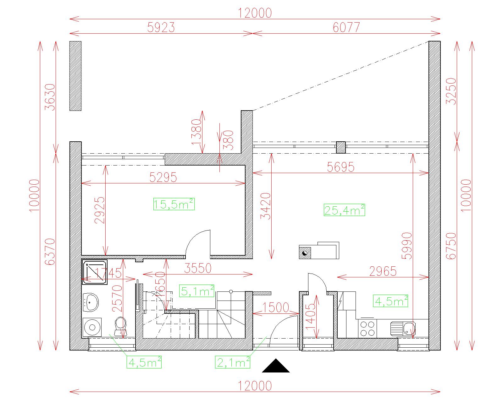
| Popis | Hodnota |
|---|---|
| Počet osôb | 5 |
| Orientácia vchodu | S. SV |
| Podlaží | 2 |
| Počet obytných izieb | 5 |
| Obostavaný priestor | 340 m2 |
| Celková úžitková plocha | 120.3 m2 |
| Celková obytná plocha | 75.8 m2 |
| Zastavaná plocha | 81.9 m3 |
| Výška hrebeňa strechy | 7.2 |
| Sklon strechy | 40 |
| Cena projektu | € 1 290 |
| Cena stavby na kľúč | € 147 000 |


