Podlaží
Izieb
Osoby
Úžitková plocha
Cena projektu
Cena na kľúč
Cena stavby svojpomocne
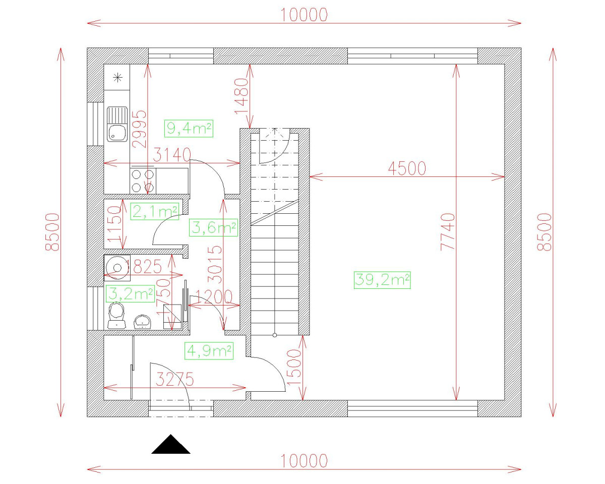
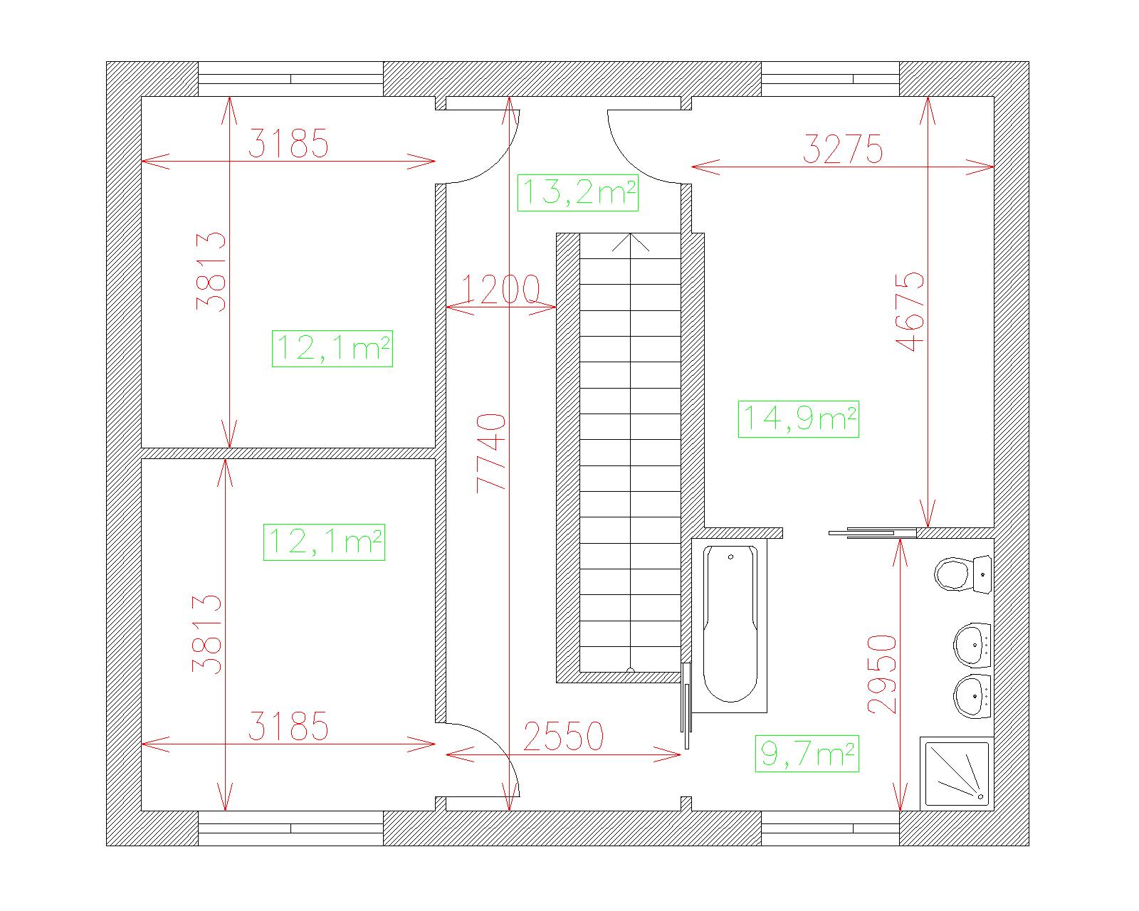
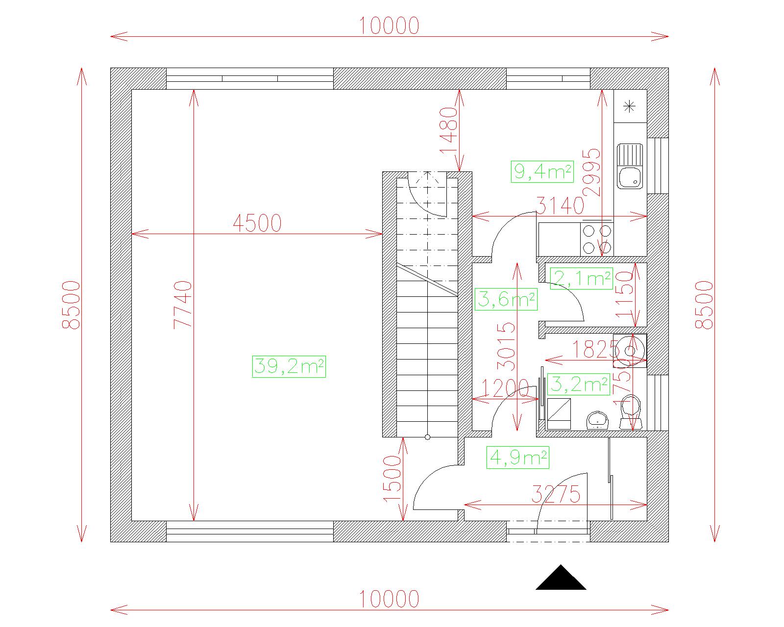
| Popis | Hodnota |
|---|---|
| Počet osôb | 4 |
| Orientácia vchodu | V. SV |
| Podlaží | 2 |
| Počet obytných izieb | 4 |
| Obostavaný priestor | 520 m2 |
| Celková úžitková plocha | 132.8 m2 |
| Celková obytná plocha | 78.3 m2 |
| Zastavaná plocha | 85 m3 |
| Výška hrebeňa strechy | 7.6 |
| Sklon strechy | 40 |
| Cena projektu | € 2 600 |
| Cena stavby na kľúč | € 152 000 |


