Podlaží
Izieb
Osoby
Úžitková plocha
Cena projektu
Cena na kľúč
Cena stavby svojpomocne
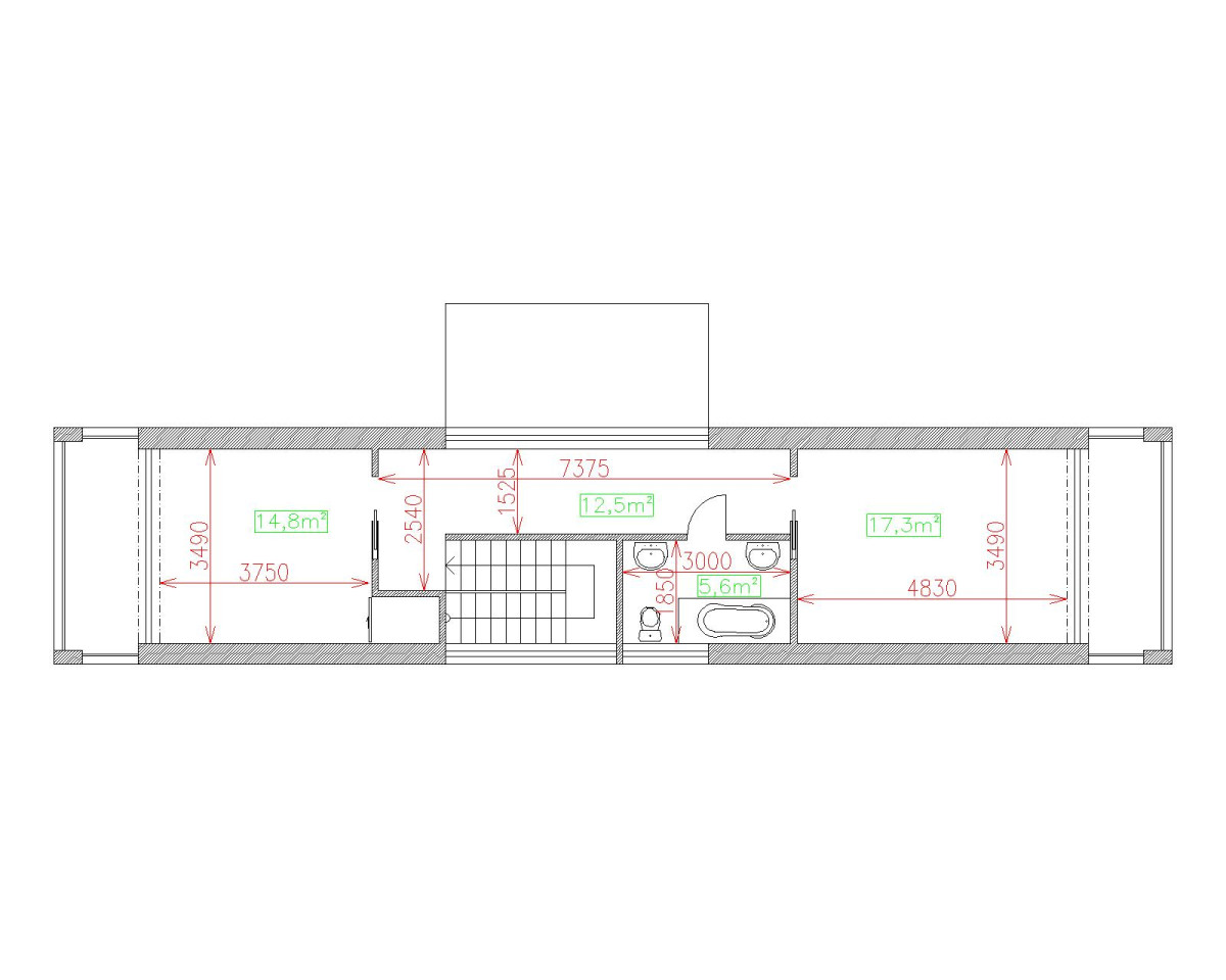
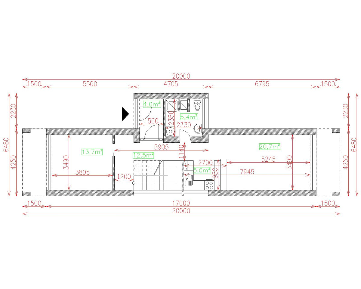
| Popis | Hodnota |
|---|---|
| Počet osôb | 4 |
| Orientácia vchodu | Z. JZ |
| Podlaží | 2 |
| Počet obytných izieb | 4 |
| Obostavaný priestor | 540 m2 |
| Celková úžitková plocha | 127.5 m2 |
| Celková obytná plocha | 65.9 m2 |
| Zastavaná plocha | 82.7 m3 |
| Výška hrebeňa strechy | 6.5 |
| Sklon strechy | 0 |
| Cena projektu | € 2 580 |
| Cena stavby na kľúč | € 148 000 |


