Podlaží
Izieb
Osoby
Úžitková plocha
Cena projektu
Cena na kľúč
Cena stavby svojpomocne
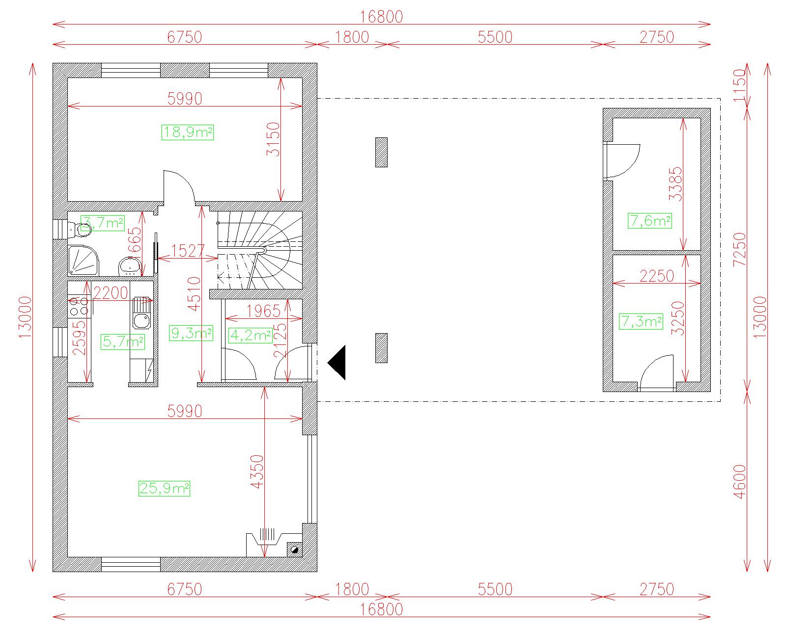
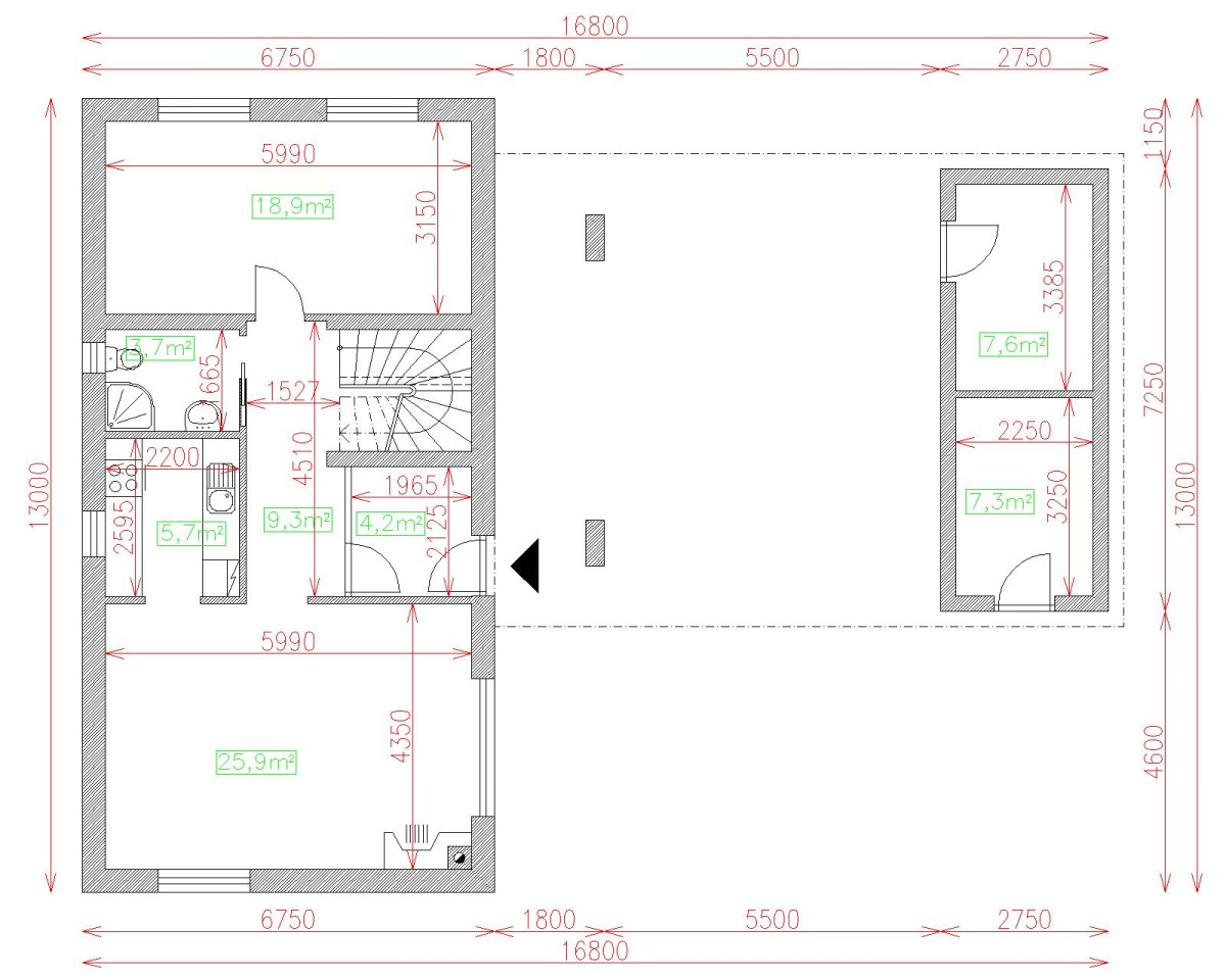
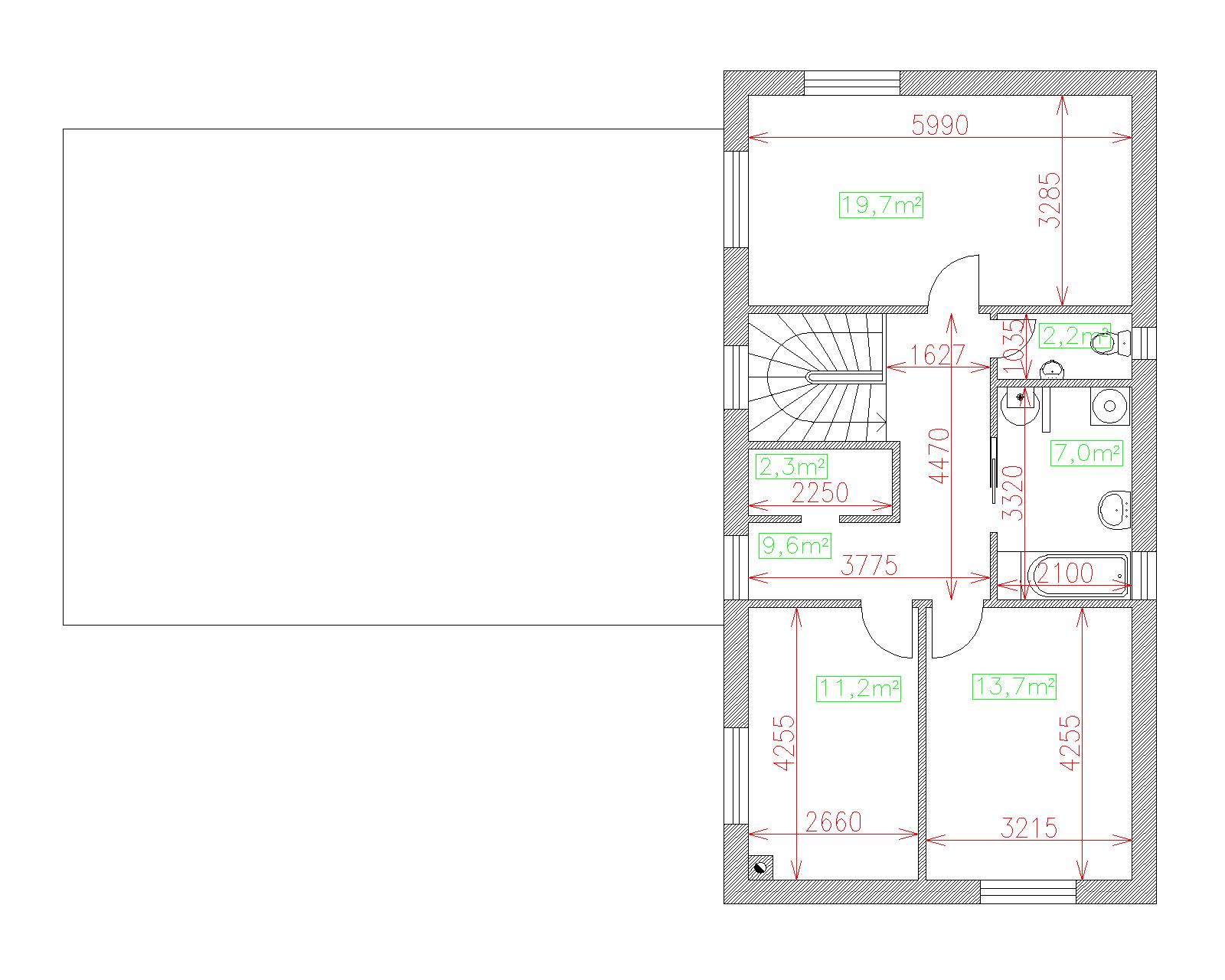
| Popis | Hodnota |
|---|---|
| Počet osôb | 6 |
| Orientácia vchodu | J |
| Podlaží | 2 |
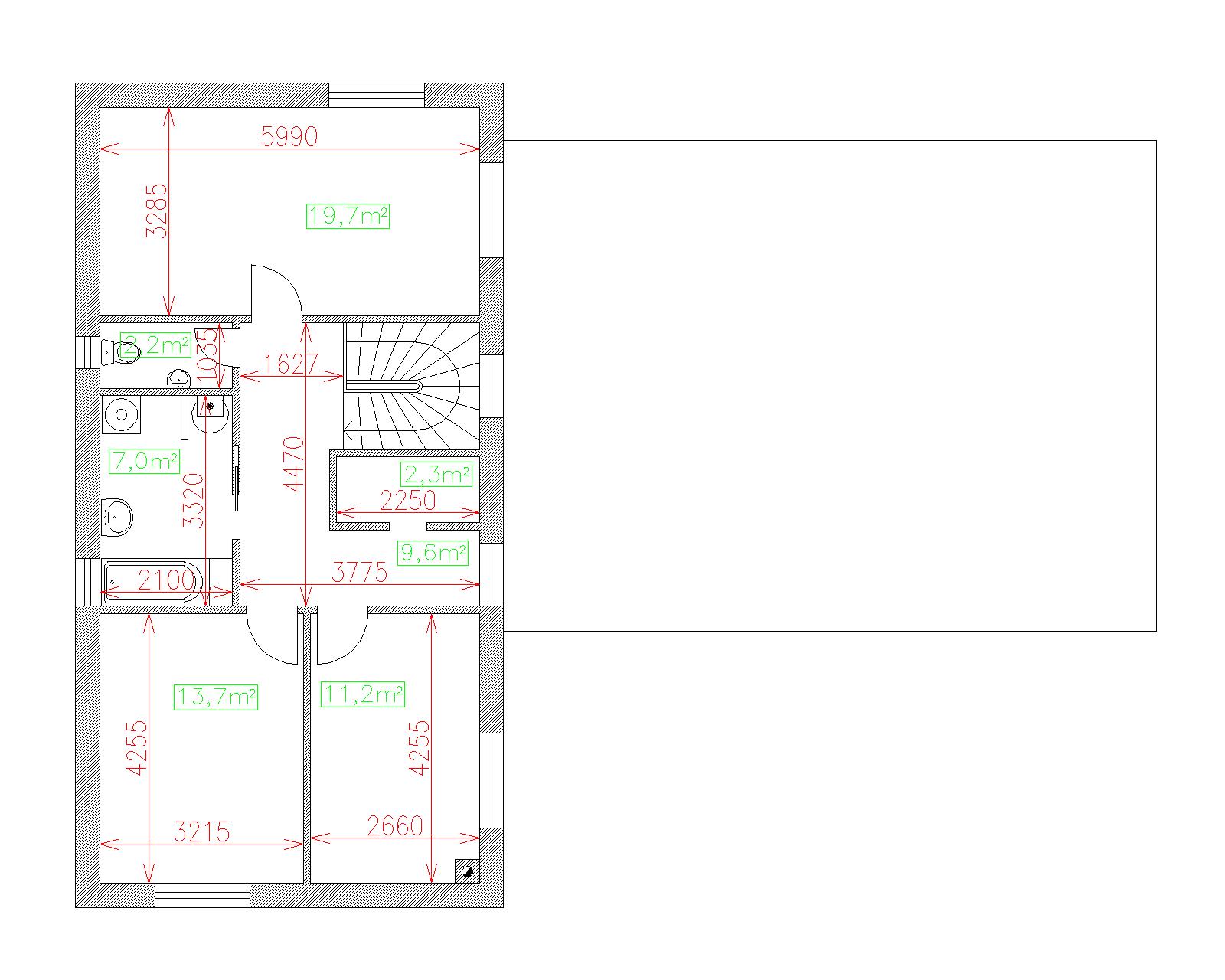
| Počet obytných izieb | 5 |
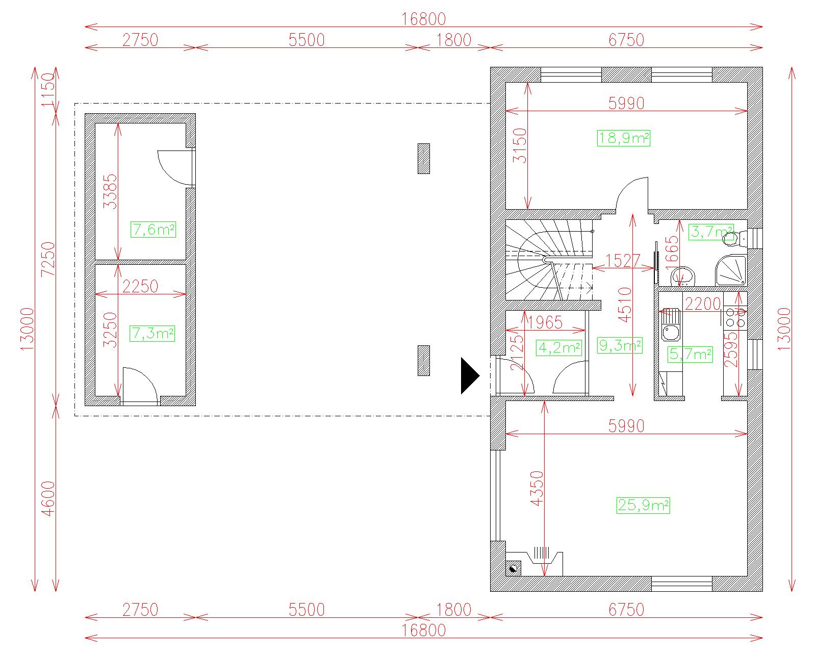
| Obostavaný priestor | 700 m2 |
| Celková úžitková plocha | 145.8 m2 |
| Celková obytná plocha | 89.4 m2 |
| Zastavaná plocha | 107.7 m3 |
| Výška hrebeňa strechy | 7.2 |
| Sklon strechy | 9 |
| Cena projektu | € 2 820 |
| Cena stavby na kľúč | € 193 000 |


