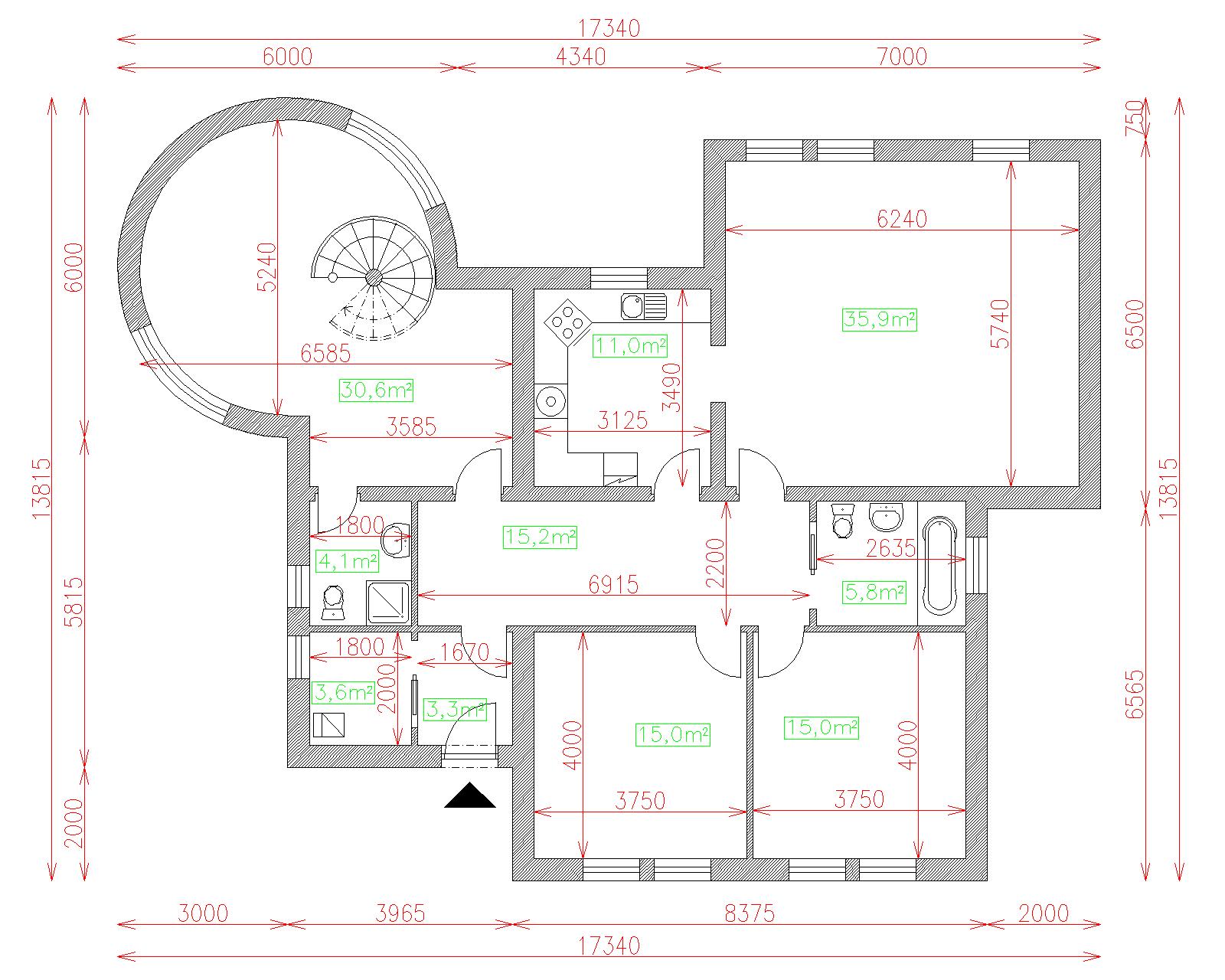
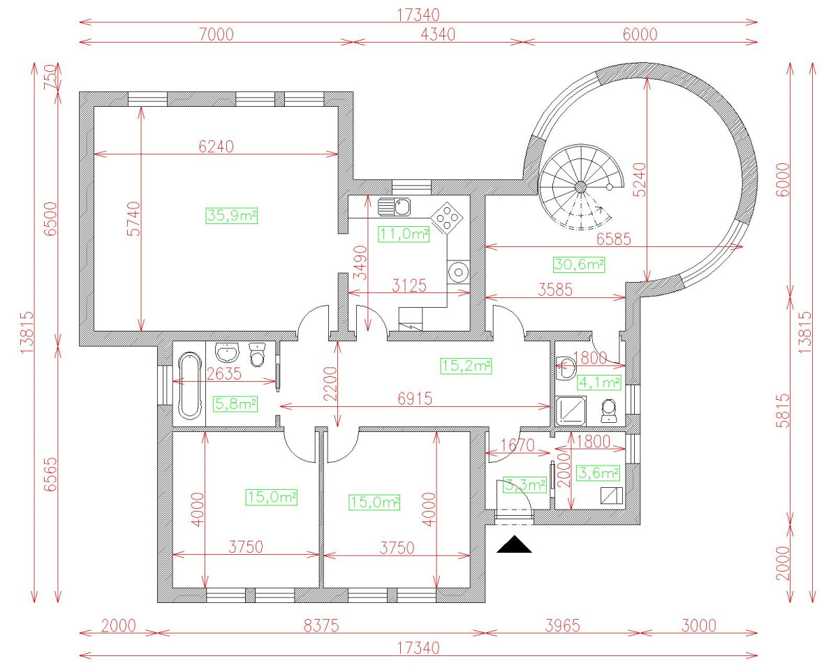
Podlaží
Izieb
Osoby
Úžitková plocha
Cena projektu
Cena na kľúč
Cena stavby svojpomocne
| Popis | Hodnota |
|---|---|
| Počet osôb | 6 |
| Orientácia vchodu | V |
| Podlaží | 2 |
| Počet obytných izieb | 5 |
| Obostavaný priestor | 760 m2 |
| Celková úžitková plocha | 161.1 m2 |
| Celková obytná plocha | 115.2 m2 |
| Zastavaná plocha | 171 m3 |
| Výška hrebeňa strechy | 9.5 |
| Sklon strechy | 5 |
| Cena projektu | € 3 100 |
| Cena stavby na kľúč | € 304 000 |


