Podlaží
Izieb
Osoby
Úžitková plocha
Cena projektu
Cena na kľúč
Cena stavby svojpomocne
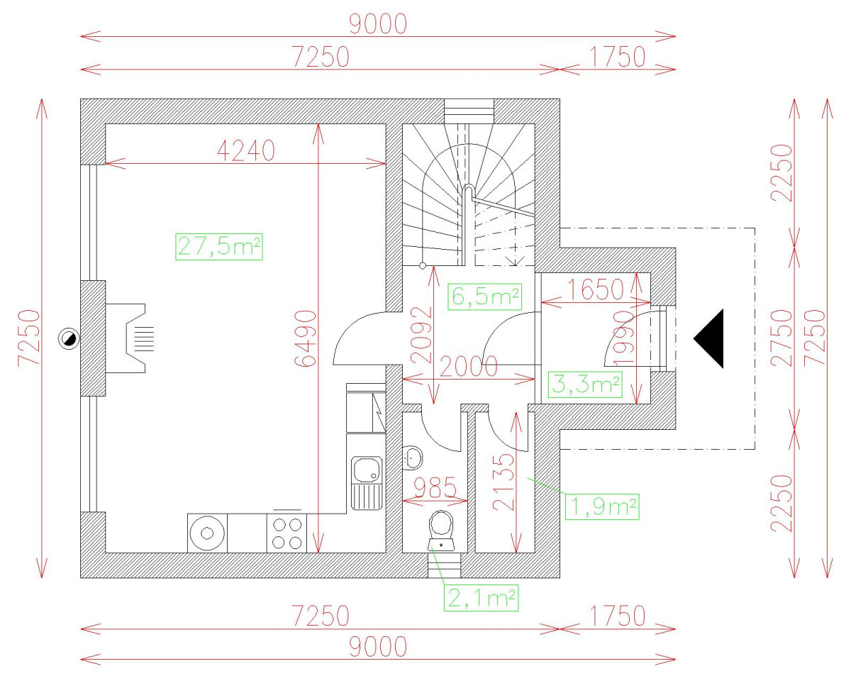
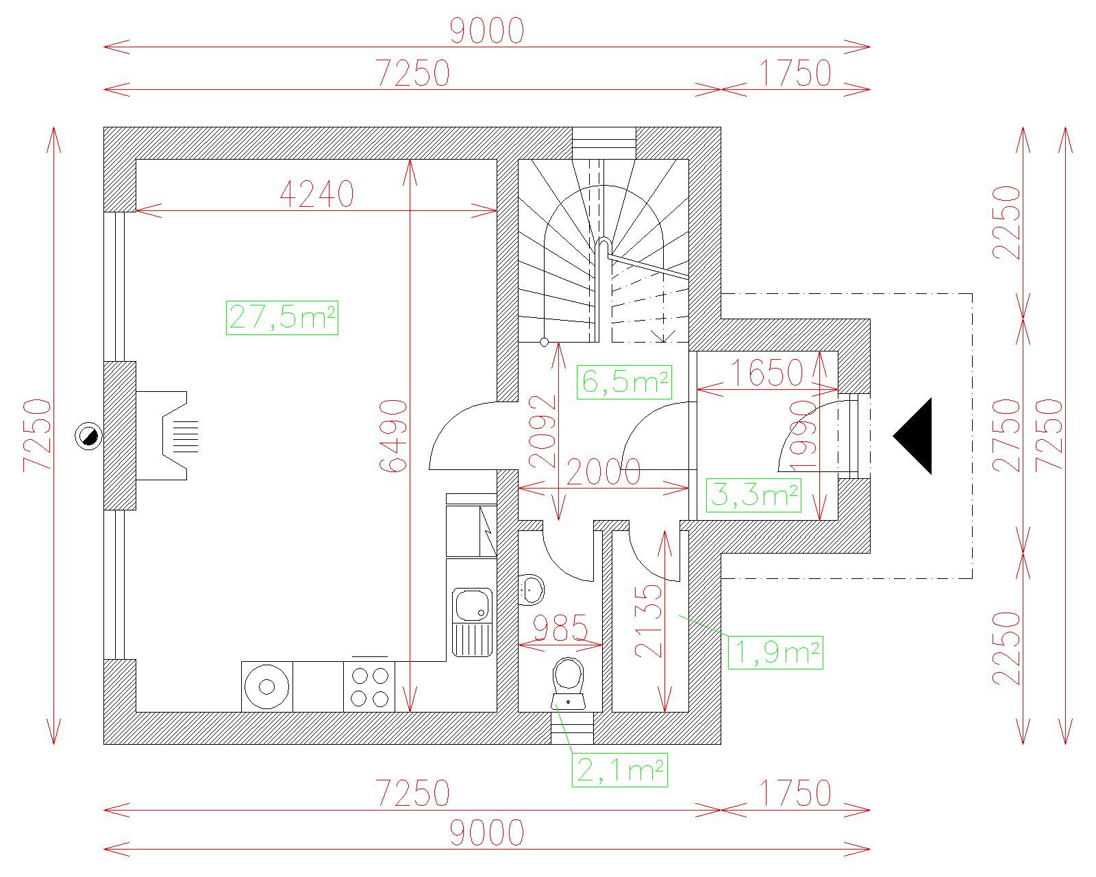
| Popis | Hodnota |
|---|---|
| Počet osôb | 3 |
| Orientácia vchodu | S |
| Podlaží | 2 |
| Počet obytných izieb | 3 |
| Obostavaný priestor | 400 m2 |
| Celková úžitková plocha | 80.9 m2 |
| Celková obytná plocha | 52.8 m2 |
| Zastavaná plocha | 57.4 m3 |
| Výška hrebeňa strechy | 7 |
| Sklon strechy | 8 |
| Cena projektu | € 2 320 |
| Cena stavby na kľúč | € 104 000 |


