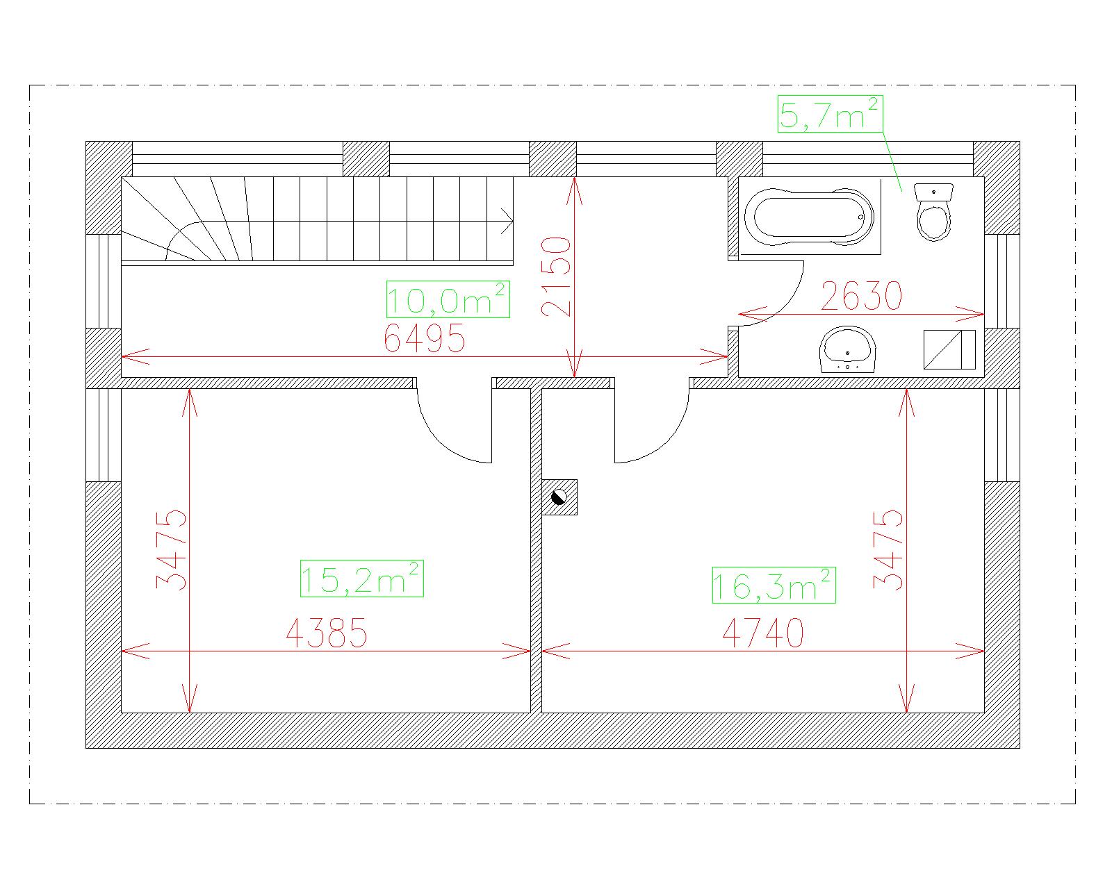
Podlaží
Izieb
Osoby
Úžitková plocha
Cena projektu
Cena na kľúč
Cena stavby svojpomocne
| Popis | Hodnota |
|---|---|
| Počet osôb | 4 |
| Orientácia vchodu | J |
| Podlaží | 2 |
| Počet obytných izieb | 3 |
| Obostavaný priestor | 354 m2 |
| Celková úžitková plocha | 94.1 m2 |
| Celková obytná plocha | 52.6 m2 |
| Zastavaná plocha | 58.3 m3 |
| Výška hrebeňa strechy | 8.9 |
| Sklon strechy | 17 |
| Cena projektu | € 1 220 |
| Cena stavby na kľúč | € 105 500 |


