Podlaží
Izieb
Osoby
Úžitková plocha
Cena projektu
Cena na kľúč
Cena stavby svojpomocne
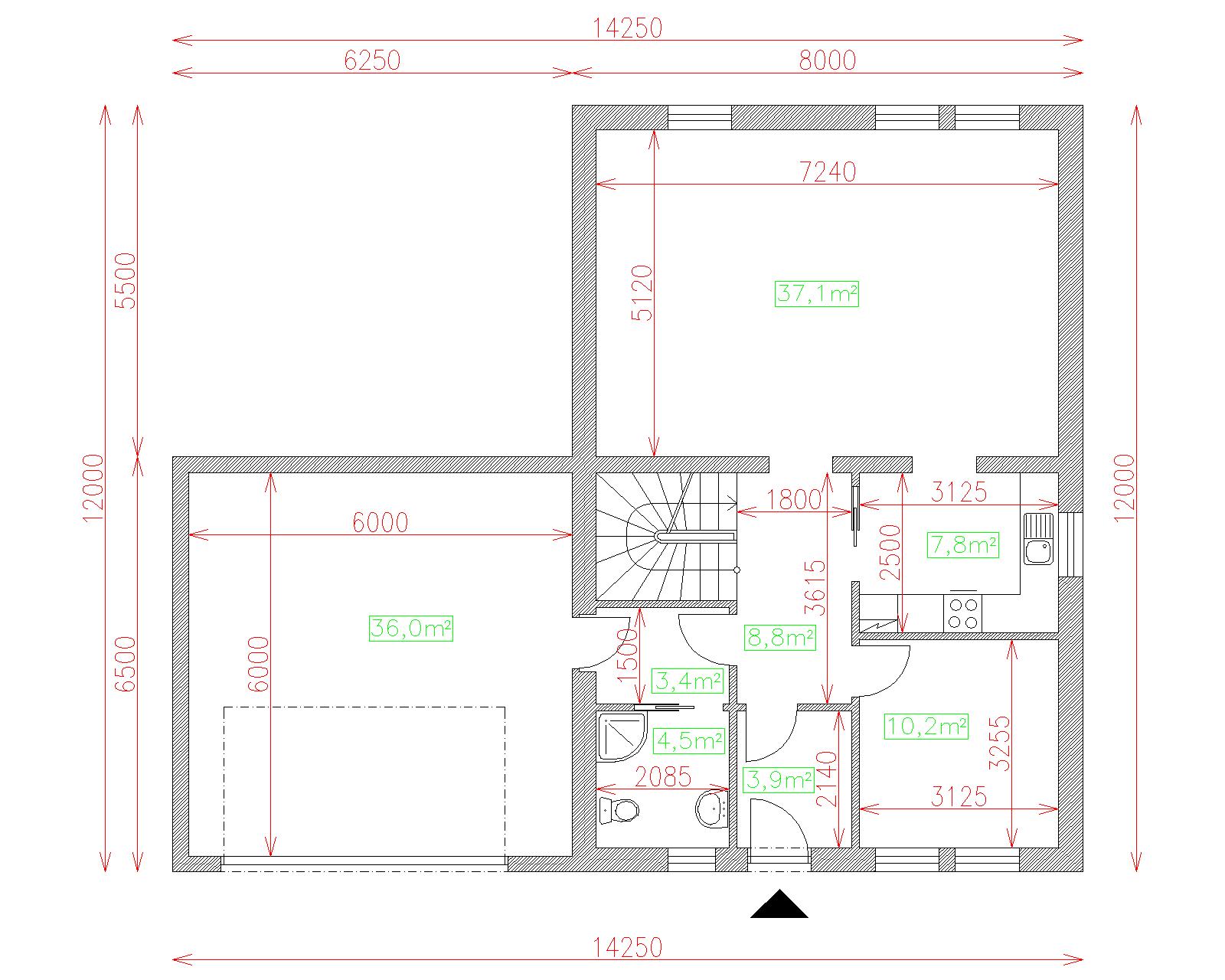
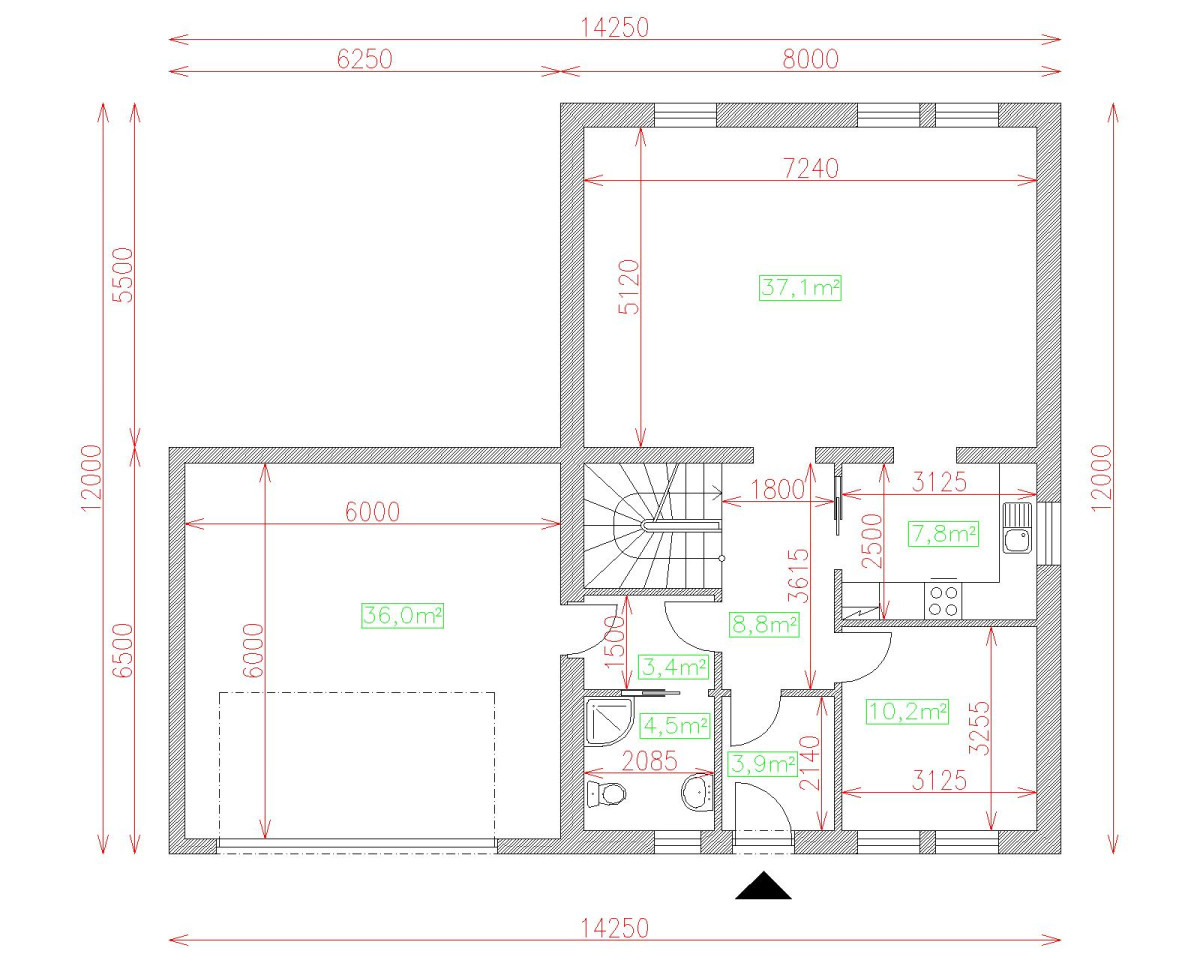
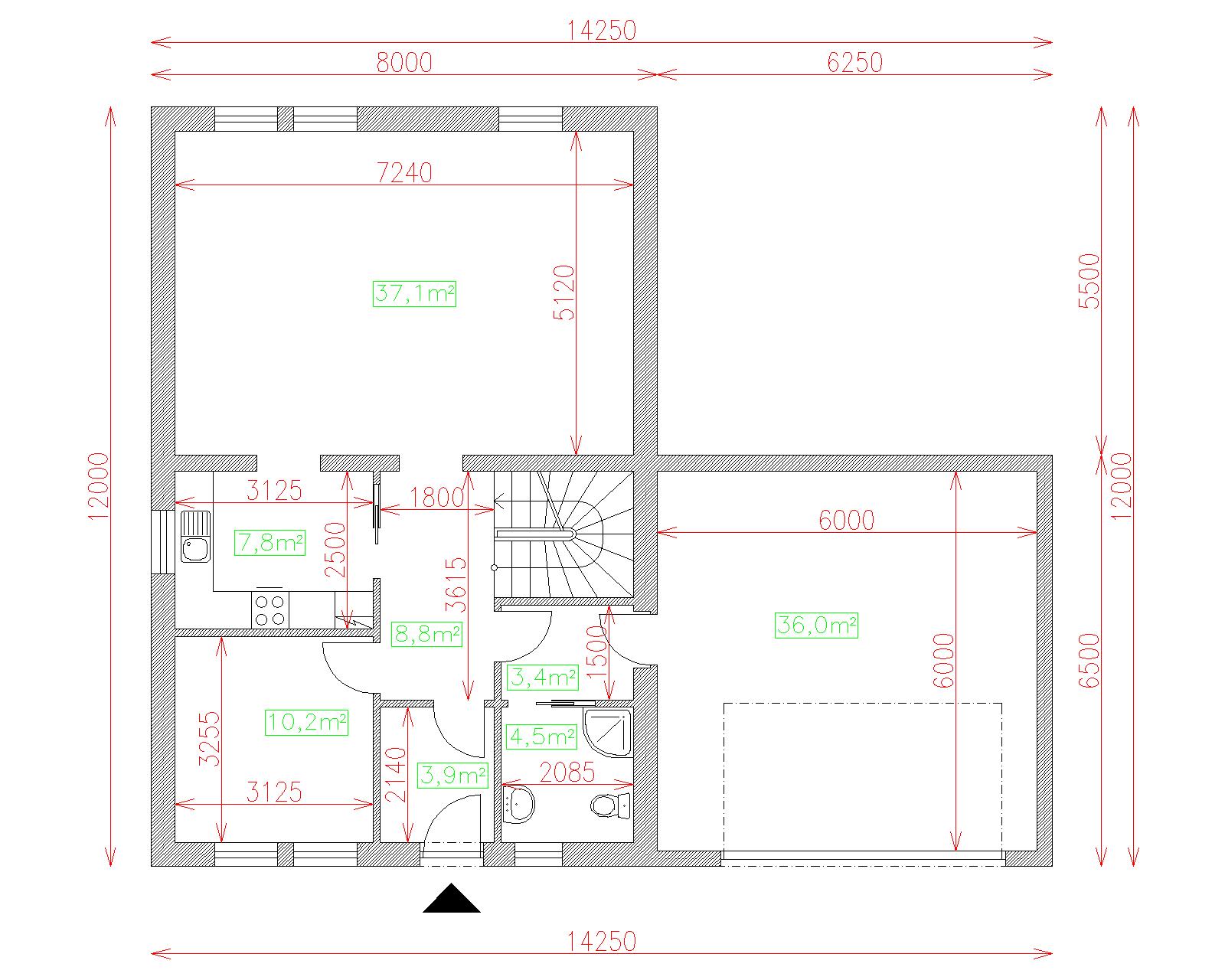
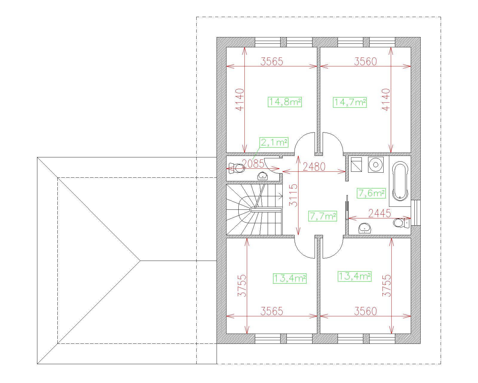
| Popis | Hodnota |
|---|---|
| Počet osôb | 6 |
| Orientácia vchodu | V. JV |
| Podlaží | 2 |
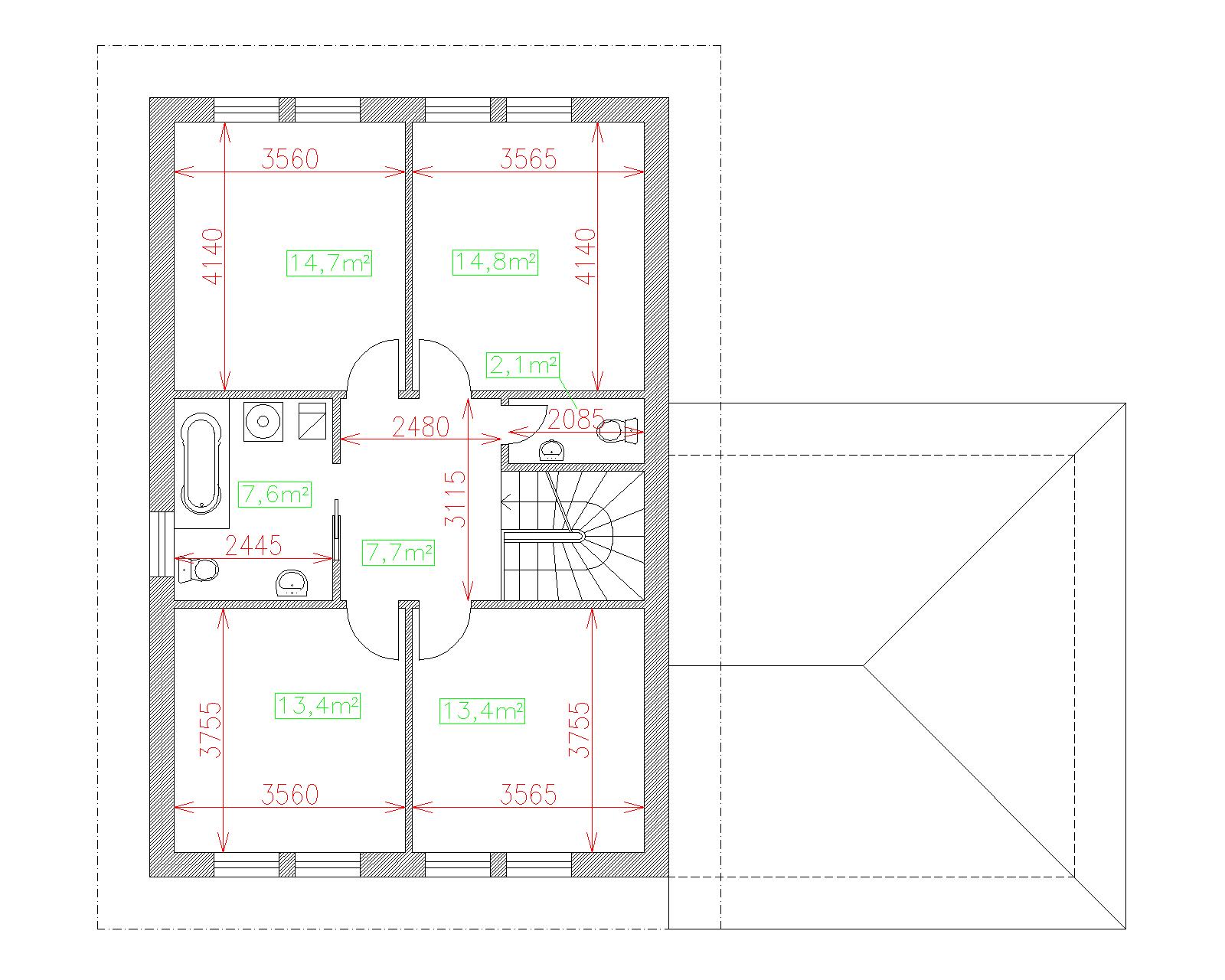
| Počet obytných izieb | 6 |
| Obostavaný priestor | 820 m2 |
| Celková úžitková plocha | 189.8 m2 |
| Celková obytná plocha | 103.6 m2 |
| Zastavaná plocha | 136.6 m3 |
| Výška hrebeňa strechy | 7.8 |
| Sklon strechy | 22 |
| Cena projektu | € 2 680 |
| Cena stavby na kľúč | € 244 000 |


