Podlaží
Izieb
Osoby
Úžitková plocha
Cena projektu
Cena na kľúč
Cena stavby svojpomocne
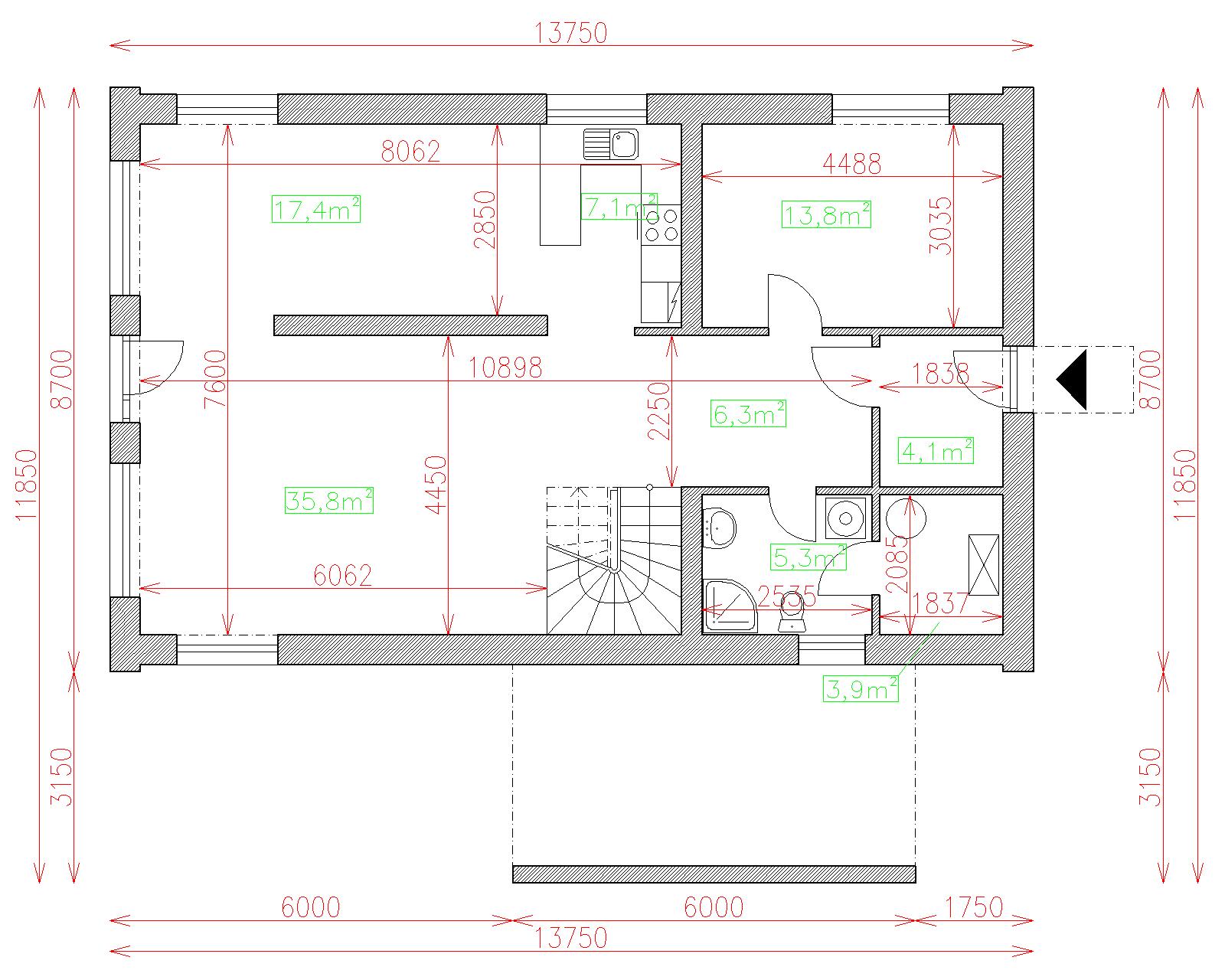
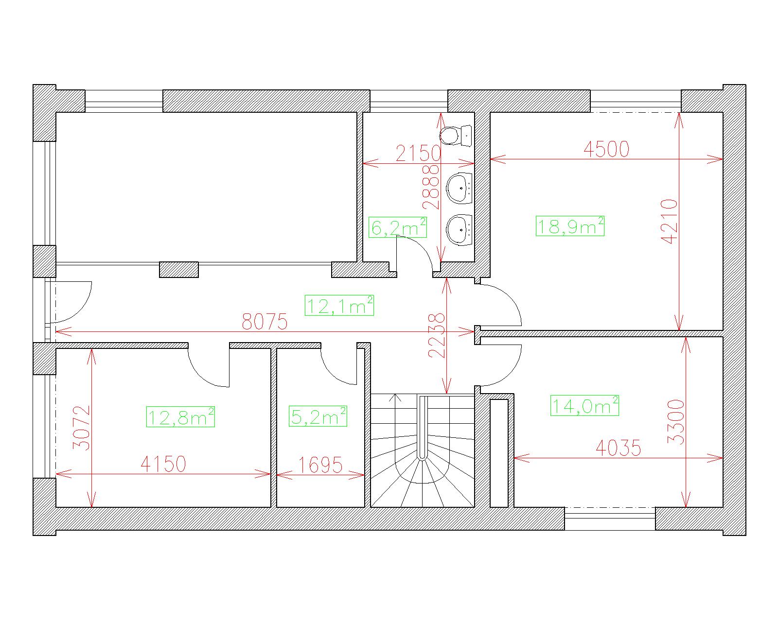
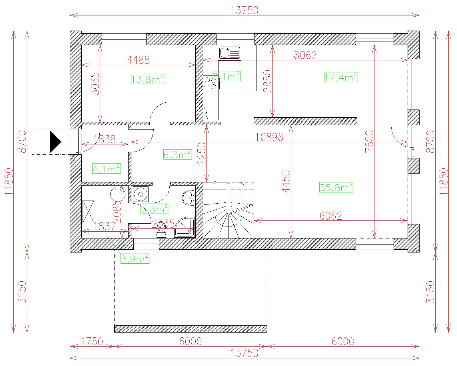
| Popis | Hodnota |
|---|---|
| Počet osôb | 6 |
| Orientácia vchodu | S |
| Podlaží | 2 |
| Počet obytných izieb | 5 |
| Obostavaný priestor | 825 m2 |
| Celková úžitková plocha | 167.3 m2 |
| Celková obytná plocha | 112.7 m2 |
| Zastavaná plocha | 117.1 m3 |
| Výška hrebeňa strechy | 7.9 |
| Sklon strechy | 7 |
| Cena projektu | € 1 720 |
| Cena stavby na kľúč | € 193 200 |


