Podlaží
Izieb
Osoby
Úžitková plocha
Cena projektu
Cena na kľúč
Cena stavby svojpomocne
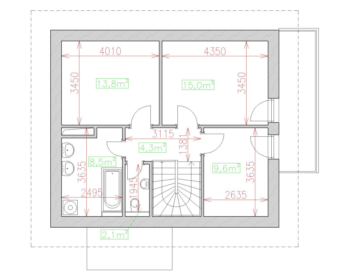
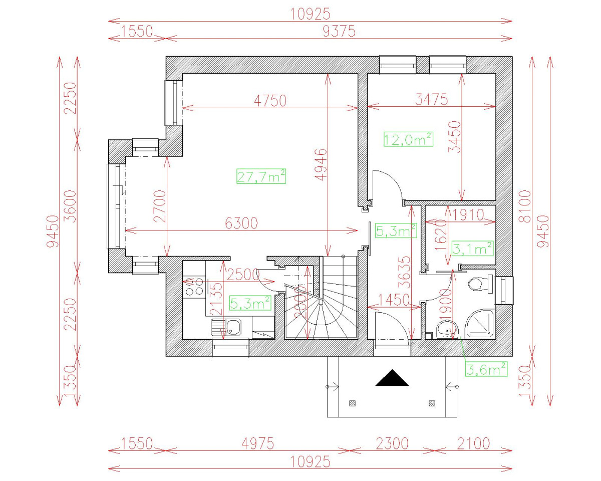
| Popis | Hodnota |
|---|---|
| Počet osôb | 5 |
| Orientácia vchodu | Z. V |
| Podlaží | 2 |
| Počet obytných izieb | 5 |
| Obostavaný priestor | 495 m2 |
| Celková úžitková plocha | 117.2 m2 |
| Celková obytná plocha | 78.1 m2 |
| Zastavaná plocha | 81.7 m3 |
| Výška hrebeňa strechy | 7.6 |
| Sklon strechy | 35 |
| Cena projektu | € 1 680 |
| Cena stavby na kľúč | € 135 300 |


