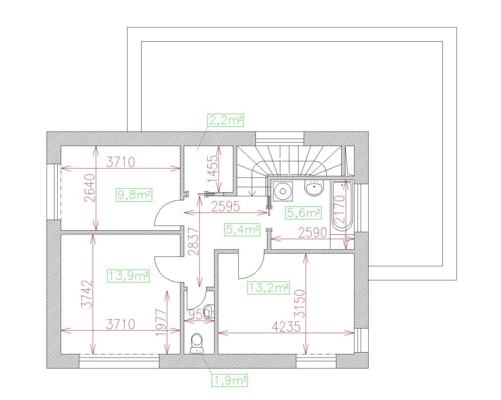
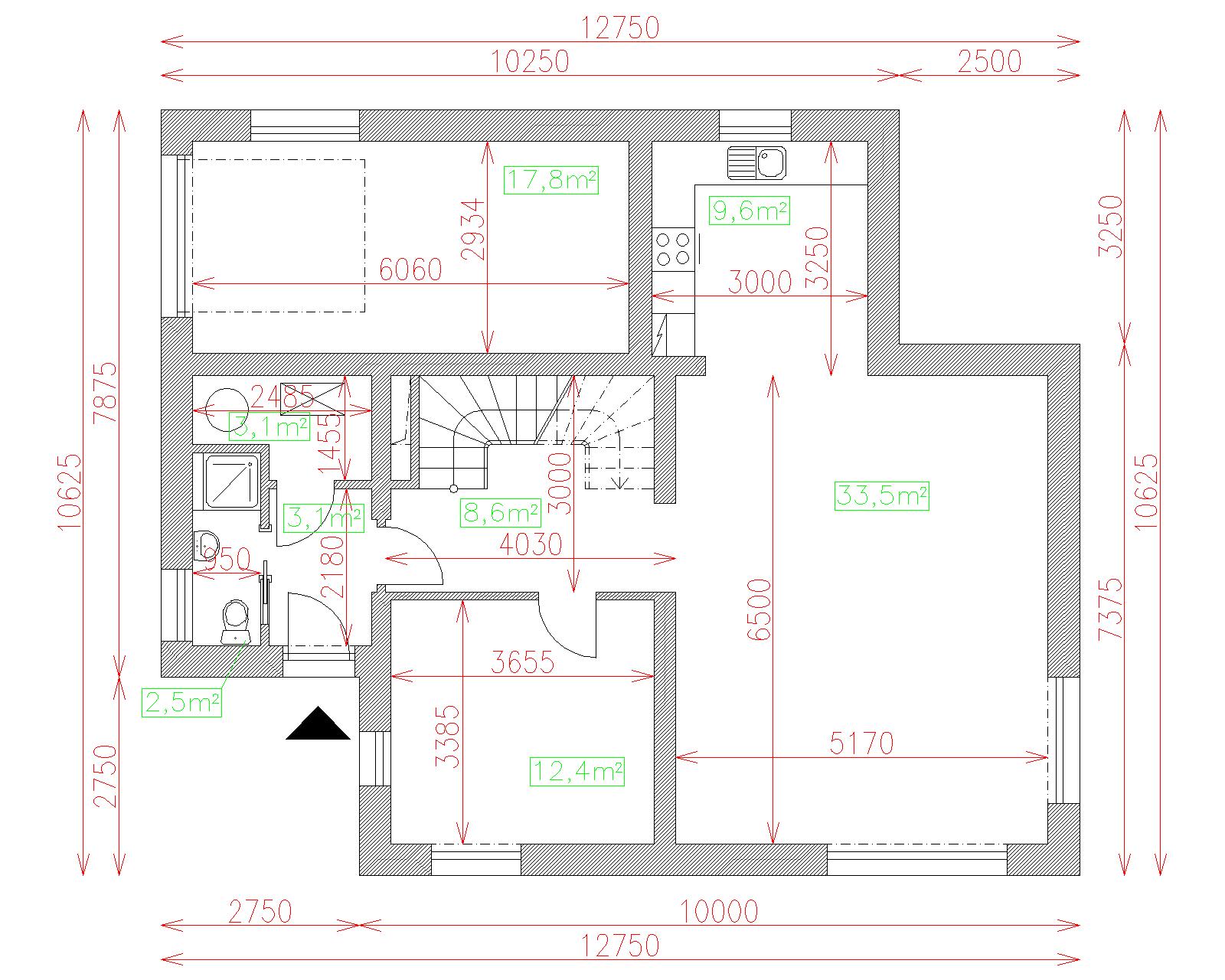
Podlaží
Izieb
Osoby
Úžitková plocha
Cena projektu
Cena na kľúč
Cena stavby svojpomocne
| Popis | Hodnota |
|---|---|
| Počet osôb | 5 |
| Orientácia vchodu | J |
| Podlaží | 2 |
| Počet obytných izieb | 5 |
| Obostavaný priestor | 640 m2 |
| Celková úžitková plocha | 148.1 m2 |
| Celková obytná plocha | 82.9 m2 |
| Zastavaná plocha | 119.8 m3 |
| Výška hrebeňa strechy | 6.7 |
| Sklon strechy | 0 |
| Cena projektu | € 1 850 |
| Cena stavby na kľúč | € 171 100 |


